Sharp VC-SV20AEU-S handleiding
Handleiding
Je bekijkt pagina 7 van 544

EN
EN – 7
EN – 7
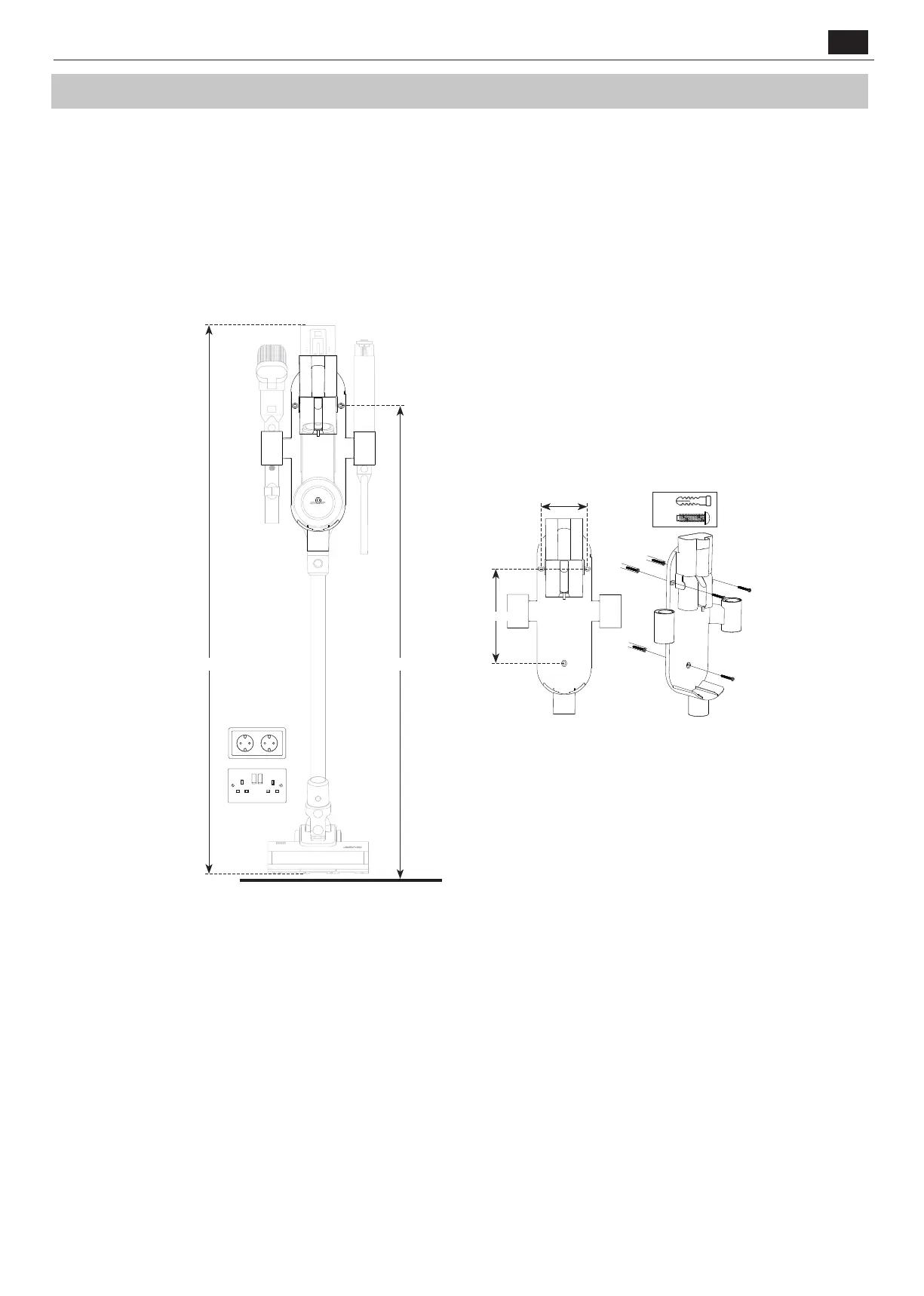
Wall caddy
For the ease and convenience of use and storage, your SHARP stick vacuum is supply with a wall mounting caddy. This caddy will
store all the tools for your vacuum and is able to charge both batteries at the same time.
NOTE: Connect smaller attachments to the extension hose and the bendable adapter to keep all parts together and organized. Use the
vertical storage pipes to the left, right and bottom of wall caddy bracket to clip in the accessory tools.
Installation of the Wall Caddy
Before installing your wall caddy, ensure that there is enough space to do so. The distance between the top of the unit and the
oor needs to be adequate so that the stick vacuum with the metal extension rod and head can be installed without catching
anything. Refer to the picture below to see the recommended installation height.
The picture on the right shows the distance between the mounting holes and details of the supplied screws and wall plugs.
>1200 mm1410 mm
230 mm
112 mm
3x
3x
1. Find a wall space location close to an electrical outlet without any obstructions such as windows or shelving.
2. With the vacuum connected to the Motorized Brush Roller and Extension Rod position the assembled vacuum against the wall
where it will be stored and mark the holes of the wall mount bracket at the right height to store the vacuum in the upright
position.
3. Use a Phillips screwdriver (not included) to install the wall caddy with the screws provided. Make sure to mark mounting holes
using the wall mounting holes on bracket.
4. Set the assembled stick vacuum in the middle of the wall caddy and plug in charging adapter with the battery installed into
a nearby power outlet. The detachable battery can also be charged on a at surface near an outlet when removed from the
vacuum.
Bekijk gratis de handleiding van Sharp VC-SV20AEU-S, stel vragen en lees de antwoorden op veelvoorkomende problemen, of gebruik onze assistent om sneller informatie in de handleiding te vinden of uitleg te krijgen over specifieke functies.
Productinformatie
Merk | Sharp |
Model | VC-SV20AEU-S |
Categorie | Stofzuiger |
Taal | Nederlands |
Grootte | 69383 MB |