Handleiding
Je bekijkt pagina 7 van 217

English - 5
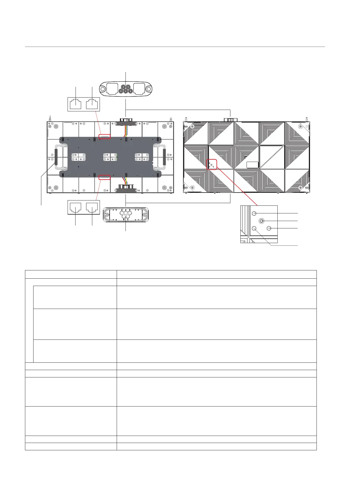
Parts Name
Front Rear
(12)
(2)
(11)
(1) (3)
(5)
(7)
(10)
(8)
(9)
(4)
(6)
FA series
Name Description
Interface connectors Input and output connectors for the signal and AC power.
(1) (2) Signal input/output
(master)
To input the signal from the LED controller or the previous LED module.
When a signal is input into (1), the signal is output from (2).
When a signal is input into (2), the signal is output from (1).
(3) (4) Signal input/output
(slave)
To input signal from LED controller or previous LED module.
When a signal is input to (3), the signal is output from (4).
When a signal is input to (4), the signal is output from (3).
Used to duplicate the image display.
(5) (6) Power input (output) When AC power is input into (5), AC power is output from (6).
When AC power is input into (6), AC power is output from (5).
Do not input AC power into both (5) and (6).
(7) Status lamp (red) Lights up when power is on.
(8) Status lamp (blue) Blinks when images are displayed using signals from the slave.
(9) Status lamp (green) Flashes at intervals of about 1 second when displaying images with
signals from the master.
Flashes at intervals of approximately 4 seconds when neither master nor
slave signal is input.
(10) Test button Used to display the test patterns. The displayed pattern changes each
time the test button is pressed.
The signal from the LED controller must be interrupted to display a test
pattern.
(11) Handle Use the handles when carrying and installing the cabinet.
(12) Guide pin Used to align the cabinets when installing them on top of each other.
Bekijk gratis de handleiding van Sharp LD-FE382, stel vragen en lees de antwoorden op veelvoorkomende problemen, of gebruik onze assistent om sneller informatie in de handleiding te vinden of uitleg te krijgen over specifieke functies.
Productinformatie
| Merk | Sharp |
| Model | LD-FE382 |
| Categorie | Monitor |
| Taal | Nederlands |
| Grootte | 35578 MB |







