Handleiding
Je bekijkt pagina 46 van 116

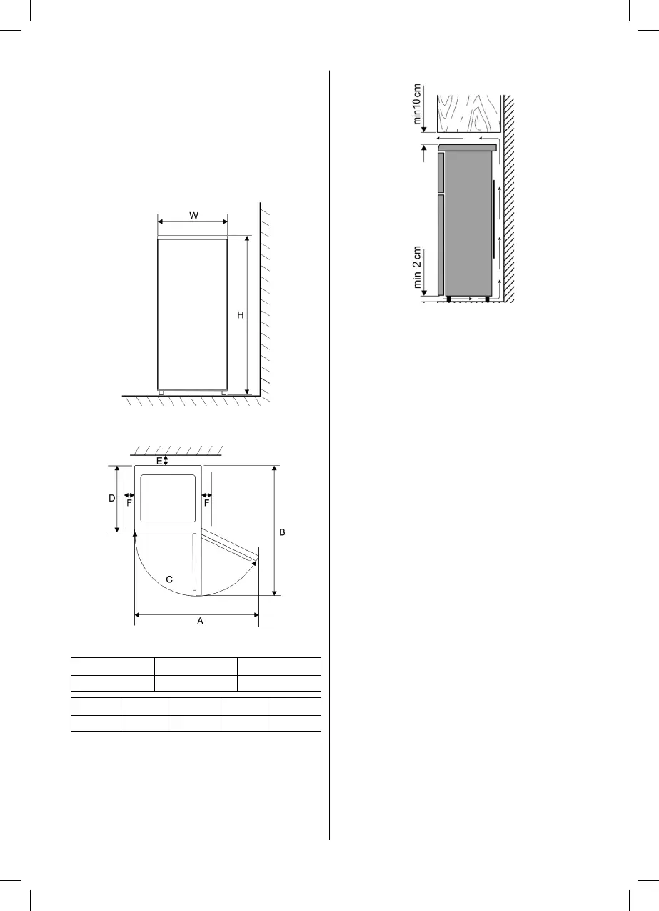
Installatieafmetingen
Als het apparaat aan de zijkant van een wand
wordt geplaatst, moet u een zijdelingse af-
stand van ten minste 60 mm aanhouden, zo-
dat de deuren van het apparaat 90° kunnen
worden geopend. Om de VeggiBox volledig
uit het apparaat te verwijderen, verwijdert u
indien nodig het essenrek.
Breedte (W) Diepte (D) Hoogte (H)
560 mm 598 mm 845 mm
A B C E F
70 mm 100 mm
Ventilatie
De achter het apparaat opgewarmde lucht
moet vrij kunnen circuleren. Daarom mag de
luchtcirculatie niet worden gehinderd.
Let op! Blokkeer geen ventilatieopeningen
op het achterste gedeelte van de bovenste
afdekplaten!
Aansluiting
• Voor het aansluiten van het apparaat moet
gecontroleerd worden of het apparaat en
het netsnoer tijdens het transport niet
beschadigd zijn.
• Sluit het apparaat alleen aan op een vol-
gende de voorschriften geïnstalleerd stop-
contact met aardingscontact. De netspan-
ning moet overeenkomen met de spanning
die op het typeplaatje van het apparaat is
aangegeven.
• Het apparaat voldoet aan de richtlijnen, die
voor de CE-markering bindend zijn.
• Sluit het apparaat niet op een omvormer
aan.
• Het netsnoer mag de achterkant van het
apparaat niet aanraken om trilgeluiden te
voorkomen.
• Het apparaat wordt in werking gesteld door
het netsnoer in het stopcontact te steken.
• Om het apparaat volledig uit te schakelen
moet de stekker uit het stopcontact worden
gehaald.
• Als het apparaat van het stroomnet is
losgekoppeld, wacht dan ca. 5 minuten na
het insteken van de stekker voordat u de
thermostaat instelt.
1080 mm 1113 mm 180°
Bekijk gratis de handleiding van Severin TKS 8847, stel vragen en lees de antwoorden op veelvoorkomende problemen, of gebruik onze assistent om sneller informatie in de handleiding te vinden of uitleg te krijgen over specifieke functies.
Productinformatie
| Merk | Severin |
| Model | TKS 8847 |
| Categorie | Koelkast |
| Taal | Nederlands |
| Grootte | 12270 MB |







