Handleiding
Je bekijkt pagina 76 van 92

- 76 -
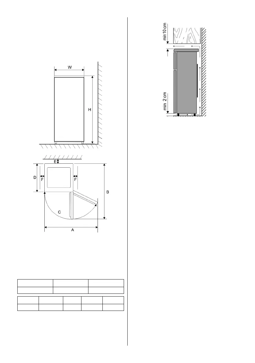
Installationsmått
Om apparaten placeras i sidled på en vägg
ska du lämna ett mellanrum på minst 60 mm
så att dörrarna till apparaten kan öppnas i
en 90 graders vinkel. För att kunna ta bort
VeggiBox och ZeroBox helt från apparaten, ta
bort askfacket vid behov.
Anvisning: Ritning för art.nr.
8887_8888_8889 spegelvänd. Dörrstoppet
benner sig då till vänster.
RKG 8887 | 8888 | 8889 |
8997 | 8998 | 8999
Bredd (B) Djup (D) Höjd (H)
597 mm 707 mm 1943 mm
A B C E F
950 mm 1170 mm 125° 50 mm 300 mm
Ventilation
Luften som värms upp bakom apparaten
behöver cirkulera fritt. Av denna anledning
kan luftcirkulationen inte äventyras.
Försiktighet! Täck inte över eventuella
bentliga ventilationsöppningar i den övre
täckplattans bakre område!
Anslutning
• Innan du ansluter apparaten måste du se
till att den och dess strömkontakt inte visar
några transportskador.
• Anslut endast apparaten till ett stötsäkert
uttag. Nätspänningen måste motsvara den
som anges på apparatens typskylt.
• Apparaten följer de riktlinjer som är
obligatoriska för CE-märkning.
• Anslut inte apparaten till en växelriktare
• Strömkontakten får inte röra baksidan för
att undvika vibrationsljud.
• Apparaten kan tas i drift genom att ansluta
nätkontakten.
• En fullständig avstängning sker endast
genom att dra ut nätkontakten.
Bekijk gratis de handleiding van Severin RKG 8999, stel vragen en lees de antwoorden op veelvoorkomende problemen, of gebruik onze assistent om sneller informatie in de handleiding te vinden of uitleg te krijgen over specifieke functies.
Productinformatie
| Merk | Severin |
| Model | RKG 8999 |
| Categorie | Koelkast |
| Taal | Nederlands |
| Grootte | 9295 MB |
Caratteristiche Prodotto
| Apparaatplaatsing | Vrijstaand |
| Kleur van het product | Crème |
| Deurscharnieren | Rechts |
| Gewicht | 68000 g |
| Breedte | 597 mm |







