Handleiding
Je bekijkt pagina 88 van 108

- 88 -
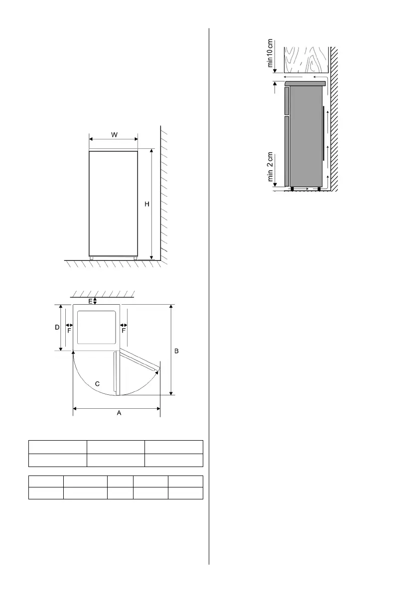
Installationsmått
Om apparaten placeras i sidled på
en vägg ska du lämna ett mellanrum
på minst 60 mm så att dörrarna till
apparaten kan öppnas i en 90 graders
vinkel. Ta bort askfacket vid behov
för att kunna ta bort VeggiBox helt från
apparaten.
Bredd (B) Djup (D) Höjd (H)
550 mm 615 mm 1 460 mm
A B C E F
903 mm 1 100 mm 125° 30 mm 100 mm
Ventilation
Luften som värms upp bakom apparaten
behöver cirkulera fritt. Av denna
anledning kan luftcirkulationen inte
äventyras.
Försiktighet! Täck inte över eventuella
bentliga ventilationsöppningar i den
övre täckplattans bakre område!
Anslutning
• Innan du ansluter apparaten måste du
se till att den och dess strömkontakt
inte visar några transportskador.
• Anslut endast apparaten till ett
stötsäkert uttag. Nätspänningen
måste motsvara den som anges på
apparatens typskylt.
• Apparaten följer de riktlinjer som är
obligatoriska för CE-märkning.
• Anslut inte apparaten till en
växelriktare
• Strömkontakten får inte röra baksidan
för att undvika vibrationsljud.
• Apparaten kan tas i drift genom att
ansluta nätkontakten.
• En fullständig avstängning sker endast
genom att dra ut nätkontakten.
• Om apparaten har kopplats bort
från elnätet ska du vänta ca.
5 minuter efter att du har anslutit
nätkontakten innan du ställer in
temperaturregulatorn i önskat läge.
Bekijk gratis de handleiding van Severin RKG 8893, stel vragen en lees de antwoorden op veelvoorkomende problemen, of gebruik onze assistent om sneller informatie in de handleiding te vinden of uitleg te krijgen over specifieke functies.
Productinformatie
| Merk | Severin |
| Model | RKG 8893 |
| Categorie | Koelkast |
| Taal | Nederlands |
| Grootte | 12005 MB |







