Handleiding
Je bekijkt pagina 49 van 108

- 49 -
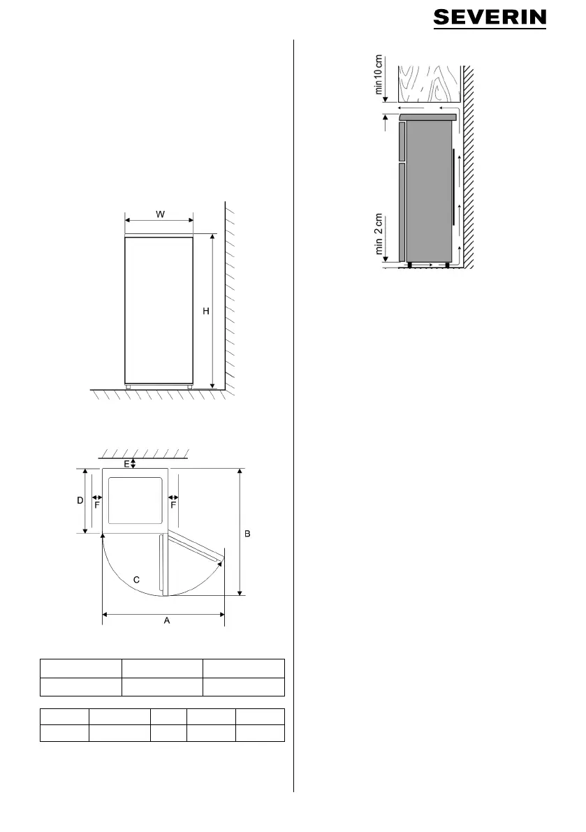
Installatieafmetingen
Als het apparaat aan de zijkant van
een wand wordt geplaatst, moet u een
zijdelingse afstand van ten minste 60
mm aanhouden, zodat de deuren van het
apparaat 90° kunnen worden geopend.
Om de VeggiBox volledig uit het apparaat
te verwijderen, verwijdert u indien nodig
het essenrek.
Breedte (W) Diepte (D) Hoogte (H)
550 mm 615 mm 1460 mm
A B C E F
903 mm 1100 mm 125° 30 mm 100 mm
Ventilatie
De achter het apparaat opgewarmde
lucht moet vrij kunnen circuleren. Daar-
om mag de luchtcirculatie niet worden
gehinderd.
Let op! Blokkeer geen ventilatieope-
ningen op het achterste gedeelte van de
bovenste afdekplaten!
Aansluiting
• Voor het aansluiten van het apparaat
moet gecontroleerd worden of het
apparaat en het netsnoer tijdens het
transport niet beschadigd zijn.
• Sluit het apparaat alleen aan op een
volgende de voorschriften geïnstalleerd
stopcontact met aardingscontact. De
netspanning moet overeenkomen met
de spanning die op het typeplaatje van
het apparaat is aangegeven.
• Het apparaat voldoet aan de richtlij-
nen, die voor de CE-markering bindend
zijn.
• Sluit het apparaat niet op een omvor-
mer aan.
• Het netsnoer mag de achterkant van
het apparaat niet aanraken om trilge-
luiden te voorkomen.
• Het apparaat wordt in werking gesteld
door het netsnoer in het stopcontact te
steken.
Bekijk gratis de handleiding van Severin RKG 8893, stel vragen en lees de antwoorden op veelvoorkomende problemen, of gebruik onze assistent om sneller informatie in de handleiding te vinden of uitleg te krijgen over specifieke functies.
Productinformatie
| Merk | Severin |
| Model | RKG 8893 |
| Categorie | Koelkast |
| Taal | Nederlands |
| Grootte | 12005 MB |







