Handleiding
Je bekijkt pagina 80 van 100

- 80 -
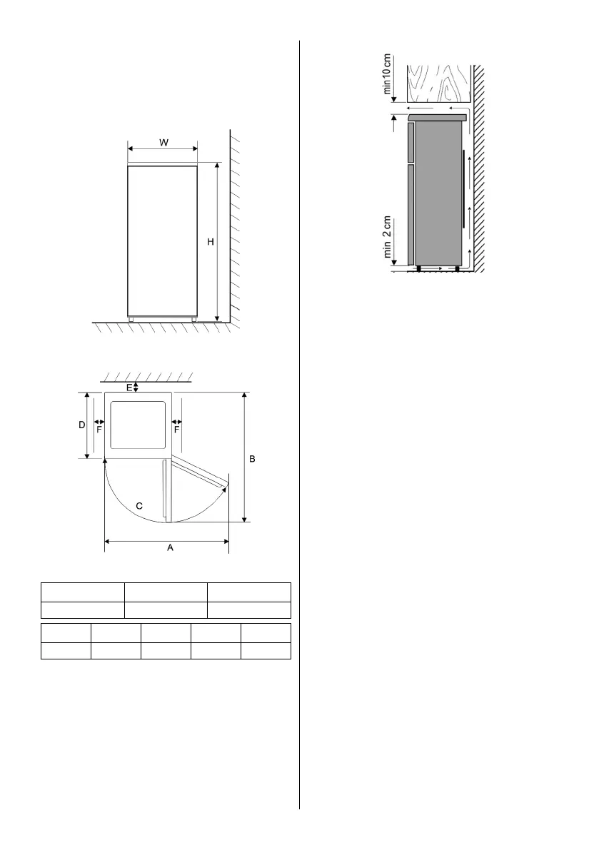
Installationsmått
Om apparaten placeras i sidled på en vägg
ska du lämna ett mellanrum på minst 60 mm
så att dörrarna till apparaten kan öppnas i en
90 graders vinkel.
Bredd (B) Djup (D) Höjd (H)
560 mm 575 mm 845 mm
A B C E F
915 mm 1 100 mm 125° 30 mm 100 mm
Ventilation
Luften som värms upp bakom apparaten
behöver cirkulera fritt. Av denna anledning
kan luftcirkulationen inte äventyras.
Försiktighet! Täck inte över eventuella
bentliga ventilationsöppningar i den övre
täckplattans bakre område!
Anslutning
• Innan du ansluter apparaten måste du se
till att den och dess strömkontakt inte visar
några transportskador.
• Anslut endast apparaten till ett stötsäkert
uttag. Nätspänningen måste motsvara den
som anges på apparatens typskylt.
• Apparaten följer de riktlinjer som är
obligatoriska för CE-märkning.
• Anslut inte apparaten till en växelriktare
• Strömkontakten får inte röra baksidan för
att undvika vibrationsljud.
• Apparaten kan tas i drift genom att ansluta
nätkontakten.
• En fullständig avstängning sker endast
genom att dra ut nätkontakten.
• Om apparaten har kopplats bort från
elnätet ska du vänta ca. 5 minuter efter
att du har anslutit nätkontakten innan du
ställer in temperaturregulatorn i önskat
läge.
Bekijk gratis de handleiding van Severin GS 8865, stel vragen en lees de antwoorden op veelvoorkomende problemen, of gebruik onze assistent om sneller informatie in de handleiding te vinden of uitleg te krijgen over specifieke functies.
Productinformatie
| Merk | Severin |
| Model | GS 8865 |
| Categorie | Vriezer |
| Taal | Nederlands |
| Grootte | 10328 MB |