Handleiding
Je bekijkt pagina 56 van 100

- 56 -
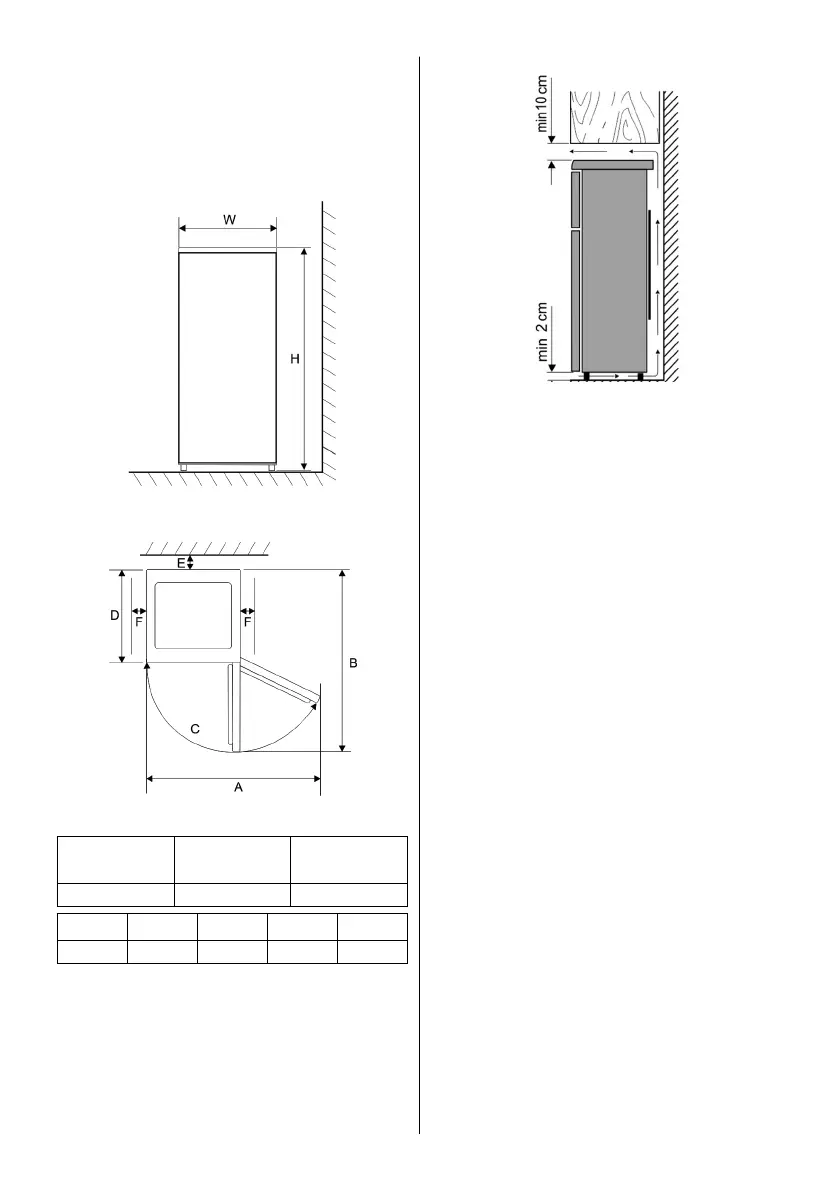
Medidas de instalación
Si se coloca el aparato de costado junto a
una pared, se debe dejar una separación de
al menos 60 mm para que las puertas del
aparato puedan abrirse en un ángulo de
90 grados.
Ancho
(An.)
Profundidad
(Pr.)
Altura
(Al.)
560 mm 575 mm 845 mm
A B C E F
915 mm 1100 mm 125° 30 mm 100 mm
Ventilación
El aire caliente debe circular libremente por
detrás del aparato. Por este motivo, no se
debe interferir la circulación de aire.
¡Precaución! ¡No cubra las posibles ranuras
de ventilación de la parte trasera de la placa
superior!
Conexión
• Antes de conectar el aparato, debe
comprobar que el propio aparato y
el enchufe eléctrico no tengan daños
producidos durante el transporte.
• Conecte el aparato únicamente a tomas a
prueba de golpes. La tensión eléctrica debe
coincidir con la indicada en la placa de
identicación del aparato.
• El aparato cumple las directivas
obligatorias para conseguir el marcado CE.
• No conecte el aparato a un inversor de
corriente.
• El enchufe eléctrico no debe tocar la parte
posterior para evitar posibles ruidos por
vibraciones.
• Es posible poner el aparato en
funcionamiento conectando el enchufe
eléctrico a la red.
• Para apagarlo completamente se debe
desconectar el enchufe eléctrico.
• Si se ha desconectado el aparato de la
red, se debe esperar 5 minutos después
de volver a conectar el enchufe antes de
ajustar el control de temperatura en la
posición deseada.
Bekijk gratis de handleiding van Severin GS 8865, stel vragen en lees de antwoorden op veelvoorkomende problemen, of gebruik onze assistent om sneller informatie in de handleiding te vinden of uitleg te krijgen over specifieke functies.
Productinformatie
| Merk | Severin |
| Model | GS 8865 |
| Categorie | Vriezer |
| Taal | Nederlands |
| Grootte | 10328 MB |