Handleiding
Je bekijkt pagina 20 van 100

- 20 -
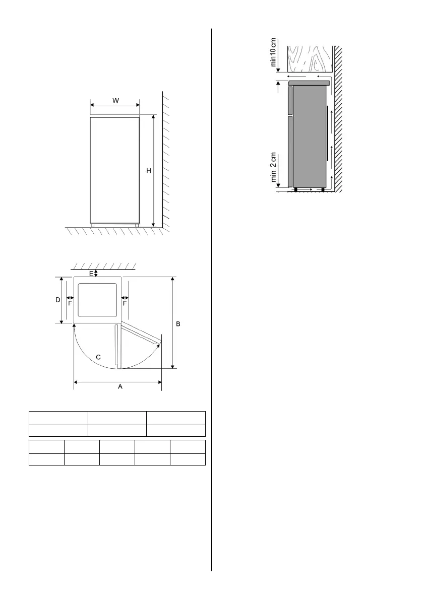
Installation measures
If the appliance is placed sideways on a wall,
you will leave a lateral gap of at least 60
mm, so that the doors of the appliance can
open in a 90-degree angle.
Width (W) Depth (D) Height (H)
560 mm 575 mm 845 mm
A B C E F
915 mm 1100 mm 125° 30 mm 100 mm
Ventilation
The air warmed behind the appliance needs
to circulate freely. For this reason, the circula-
tion of air cannot be compromised.
Caution! Do not cover possible existing
ventilation openings in the back area of the
top cover plate!
Connection
• Before you connect the appliance, you have
to make sure that itself and the power plug
do not show any transport damages.
• Connect the appliance only to a shockproof
outlet. The mains voltage has to correspond
to the one stated on the tool identication
plate.
• The appliance complies with the guidelines
that are obligatory for CE marking.
• Do not connect the appliance to an inverter
• The power plug should not touch the back-
side, in order to avoid possible vibration
noise.
• The appliance can be put into operation by
plugging the mains plug into the point.
• A complete switching-off only occurs by
pulling the mains plug.
• If the appliance has been disconnected
from the mains, wait approx. 5 minutes
after plugging in the mains plug before
setting the temperature controller to the
desired position.
Bekijk gratis de handleiding van Severin GS 8865, stel vragen en lees de antwoorden op veelvoorkomende problemen, of gebruik onze assistent om sneller informatie in de handleiding te vinden of uitleg te krijgen over specifieke functies.
Productinformatie
| Merk | Severin |
| Model | GS 8865 |
| Categorie | Vriezer |
| Taal | Nederlands |
| Grootte | 10328 MB |