Scotsman UC0918GA-1AX handleiding
Handleiding
Je bekijkt pagina 6 van 29

UC GOURMET UNDERCOUNTER
pg. 7
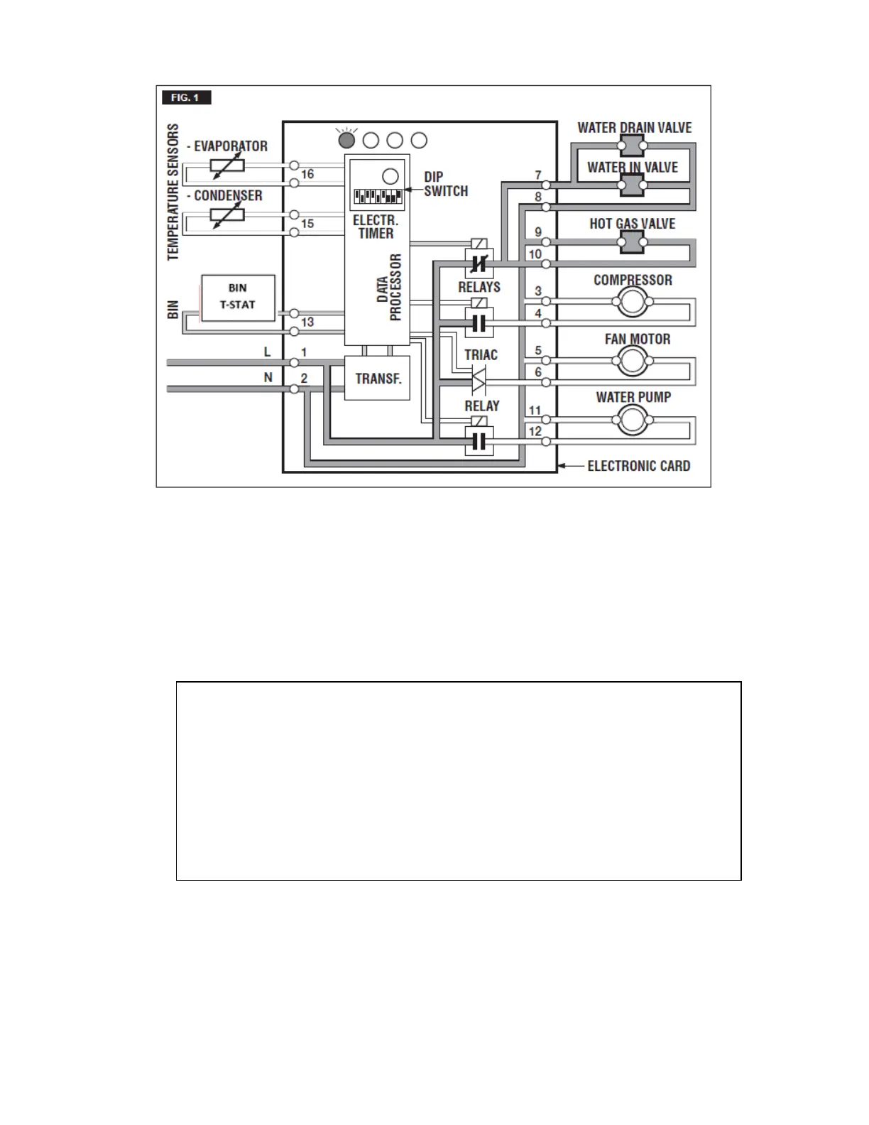
B. During the water filling operation, check to verify that the incoming water dribbles, through the
evaporator plate dribbler holes, down into the sump reservoir to fill. Also, check that the incoming
surplus of water flows out through the overflow pipe into the drain line. During the water fill phase,
the components energized are:
1. Water inlet solenoid valve
2. Hot gas solenoid valve
C. At co
mpletion of the water fill phase (5 minutes) the unit passes automatically into the freezing cycle
with the start up of the compressor, water pump, and fan motor (controlled by the condensing
temperature sensor located within the condenser fins (Fig. 2).
NOTE: If in the 5 minutes during water fill phase the machine sump reservoir does
not get filled with water up to the rim of the overflow pipe, it is advisable to check:
1. The water pressure of the water supply line that must be at least 14psig (1
bar) minimum and 70psig (5 bar) maximum.
2. The filtering device installed in the water line that may reduce the water
pressure below the minimum value of 14psig (1 bar).
3. Any clogging situation in the water circuit like the inlet water strainer
and/or the flow control.
Bekijk gratis de handleiding van Scotsman UC0918GA-1AX, stel vragen en lees de antwoorden op veelvoorkomende problemen, of gebruik onze assistent om sneller informatie in de handleiding te vinden of uitleg te krijgen over specifieke functies.
Productinformatie
| Merk | Scotsman |
| Model | UC0918GA-1AX |
| Categorie | Niet gecategoriseerd |
| Taal | Nederlands |
| Grootte | 5812 MB |







