Scotsman Prodigy Elite MC0530 handleiding
Handleiding
Je bekijkt pagina 6 van 22

MC0322 through MC1030
Air and Water Cooled User Manual
June 2022
Page 5
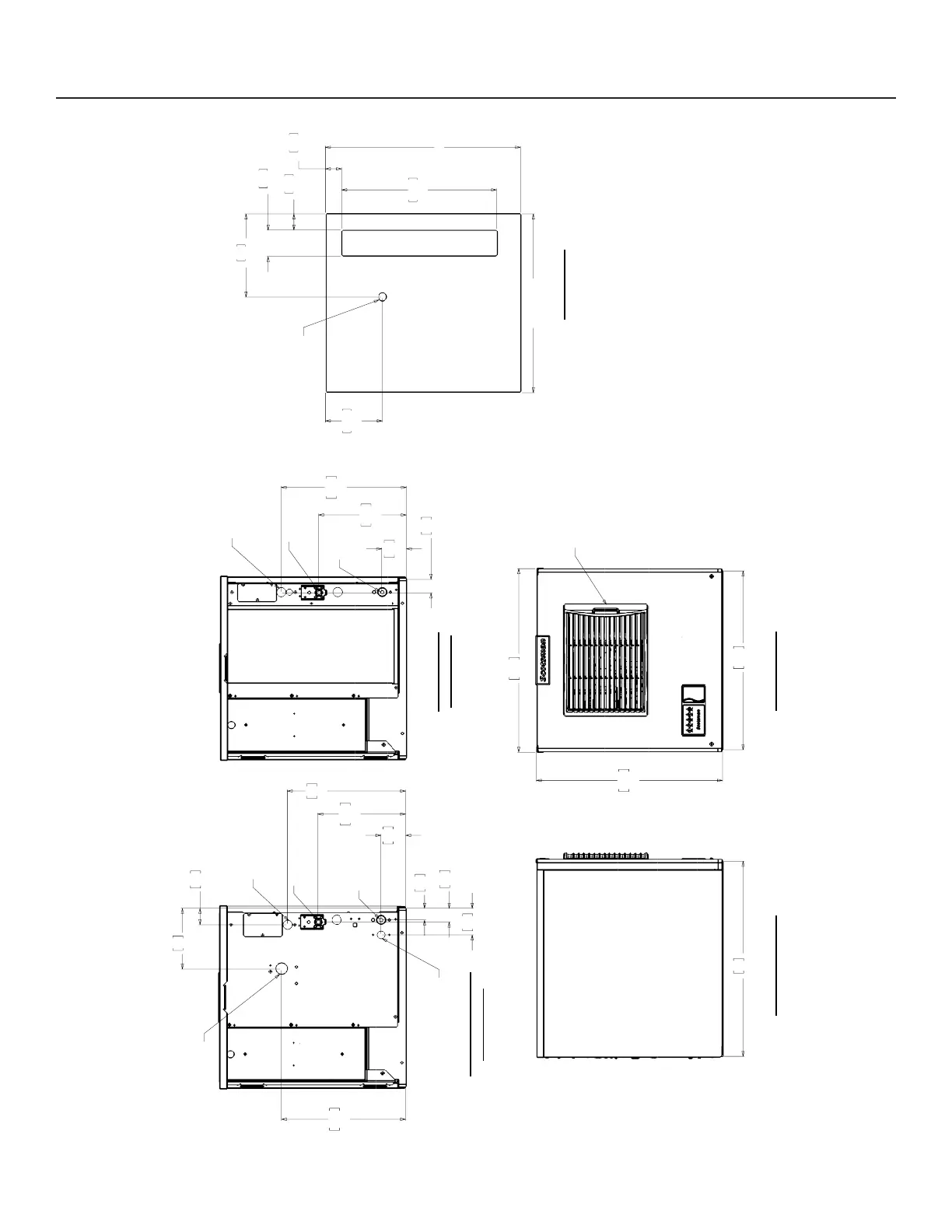
MC0322 and MC0522 Cabinet Layout
57.4
22.58
55.9
22.00
58.2
22.93
LOUVER AND
REMOVABLE FILTER
AC UNITS ONLY
4.2
1.66
7.7
3.04
27.4
10.81
39.1
15.41
3/4" FPT
DRAIN
3/8" FPT
WATER
INLET
.88" DIA
ELECTRICAL
ACCESS
4.3
1.69
3.6
1.44
8.3
3.27
5.1
2.03
38.8
15.29
19
7.48
7.7
3.04
27.4
10.81
37
14.56
3/4" FPT
DRAIN
3/8" FPT
WATER
INLET
.88" DIA
ELECTRICAL
ACCESS
1/2" FPT
CONDENSER
DRAIN
3/8" FPT
CONDENSER
WATER INLET
24.00
REF.
22.00
REF.
2.00
5.1
2.00
5.1
19.05
48.4
3.25
8.3
10.25
26
7.00
17.8
ICE DROP OPENING
ULTRASONIC
BIN LEVEL
SENSOR
(OPTIONAL)
61
24.00
AIR COOLED
BACK VIEW
LEFT SIDE VIEW
FRONT VIEW
WATER COOLED
BACK VIEW
PLAN VIEW
Bekijk gratis de handleiding van Scotsman Prodigy Elite MC0530, stel vragen en lees de antwoorden op veelvoorkomende problemen, of gebruik onze assistent om sneller informatie in de handleiding te vinden of uitleg te krijgen over specifieke functies.
Productinformatie
| Merk | Scotsman |
| Model | Prodigy Elite MC0530 |
| Categorie | Niet gecategoriseerd |
| Taal | Nederlands |
| Grootte | 3444 MB |







