Scotsman Prodigy Elite MC0322 handleiding
Handleiding
Je bekijkt pagina 9 van 22

MC0322 through MC1030
Air and Water Cooled User Manual
June 2022
Page 8
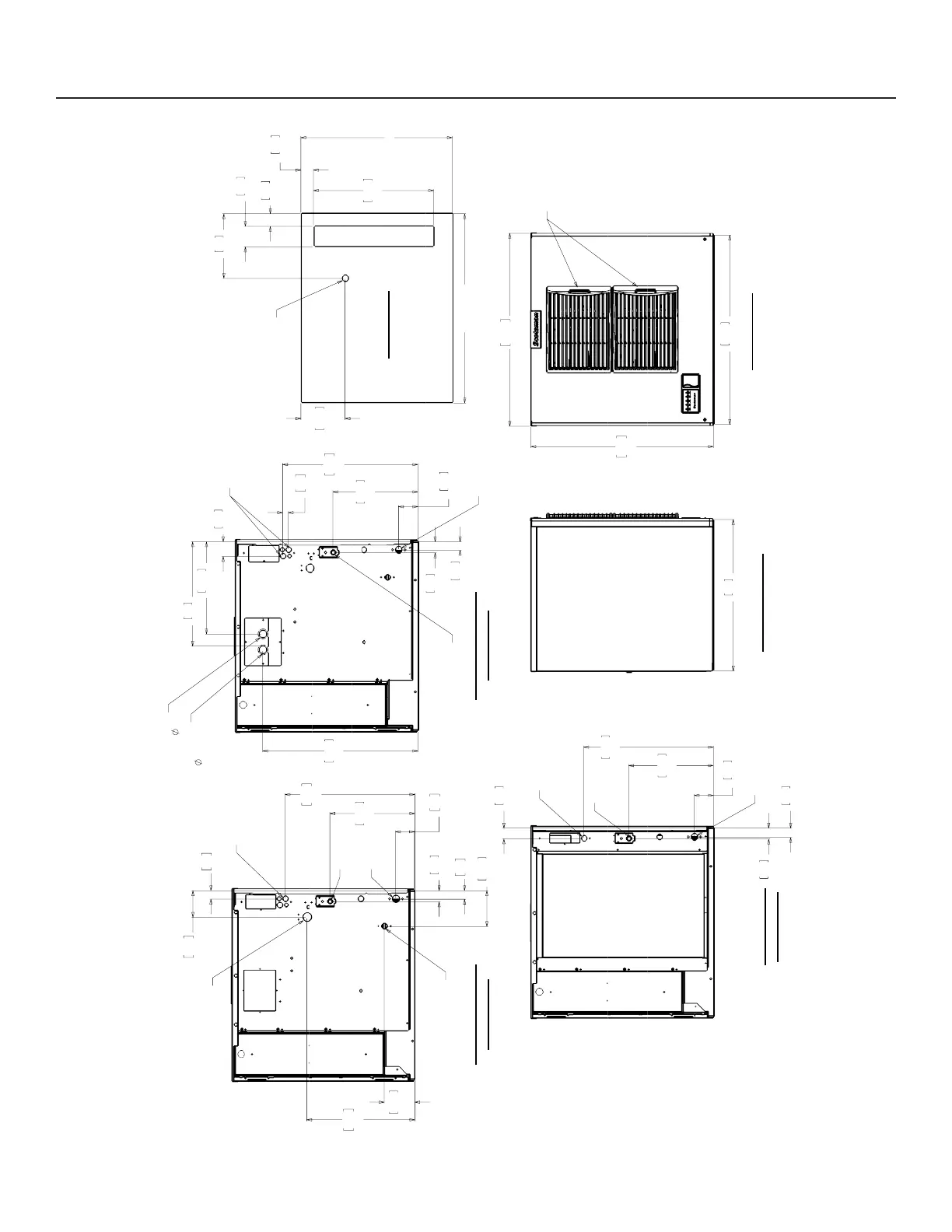
MC0830 and MC1030 Cabinet Layout
24.00
REF.
30.00
REF.
2.00
5.1
2.00
5.1
19.05
48.4
3.25
8.3
10.25
26
7.00
17.8
ICE DROP OPENING
ULTRASONIC
BIN LEVEL
SENSOR
(OPTIONAL)
30.00
76.2
77.67
30.58
73.5
28.93
LOUVERS AND
REMOVABLE FILTERS
AC UNITS ONLY
24.00
61
3.7
1.73
4.4
1.70
4.3
3.06
7.8
13.44
34.1
20.56
52.2
3/8" FPT
WATER
INLET
3/4" FPT
DRAIN
.88" DIA
ELECTRICAL
ACCESS
4.87
12.4
1.75
4.4
5.69
14.4
13.47
34.2
3.4
1.35
7.6
3.01
43.5
17.14
52.2
20.56
3.4
1.34
10.8
4.24
3/8" FPT
WATER
INLET
3/4" FPT
DRAIN
.88" DIA
ELECTRICAL
ACCESS
3/8" FPT
CONDENSER
WATER INLET
1/2" FPT
CONDENSER
DRAIN
24.60
62.5
16.54
42
14.63
37.1
2.34
5.9
3.07
7.8
13.47
34.2
1.48
3.8
1.75
4.4
2.2
.88
54.4
21.44
3/8" FPT
WATER
INLET
3/4" FPT
DRAIN
REMOTE CONDENSER
LIQUID LINE
3/8
REMOTE CONDENSER
DISCHARGE LINE
1/2
.88" DIA
ELECTRICAL
ACCESS (2)
AIR COOLED
BACK VIEW
LEFT SIDE VIEW
FRONT VIEW
WATER COOLED
BACK VIEW
REMOTE COOLED
BACK VIEW
PLAN VIEW
Bekijk gratis de handleiding van Scotsman Prodigy Elite MC0322, stel vragen en lees de antwoorden op veelvoorkomende problemen, of gebruik onze assistent om sneller informatie in de handleiding te vinden of uitleg te krijgen over specifieke functies.
Productinformatie
| Merk | Scotsman |
| Model | Prodigy Elite MC0322 |
| Categorie | Niet gecategoriseerd |
| Taal | Nederlands |
| Grootte | 3444 MB |







