Scotsman Meridian HID540AW handleiding
Handleiding
Je bekijkt pagina 6 van 20

HID312AW, HID525AW and HID540AW
Installation and User’s Manual
March 2015
Page 6
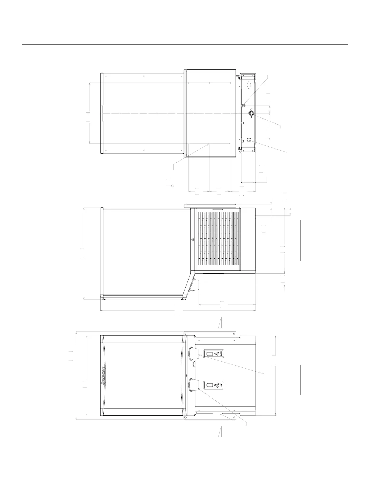
HID540AW Cabinet Drawing
54
21.25
59.1
23.25
WALL MOUNT
BRACKET
53.3
21.00
REMOVABLE
AIR FILTER
ICE CHUTE
WATER CHUTE
61.9
24.38
38
14.95
103.8
40.88
44
17.33
2.5
1.00
OFFSET
FROM
WALL
5.1
2.01
UTILITY
CHASE
7.7
3.02
14
5.50
16.9
6.66
9.7
3.80
UTILITY
CHASE
17.9
7.05
0.8
.312
(6) WALL
MOUNT HOLES
14
5.50
40.6
16.00
5.1
2.00
3/8" FLARE
WATER INLET
3/4" FPT
DRAIN
POWER
CORD
BACK VIEW
RIGHT SIDE VIEW
FRONT VIEW
AIR FLOW
AIR FLOW
Bekijk gratis de handleiding van Scotsman Meridian HID540AW, stel vragen en lees de antwoorden op veelvoorkomende problemen, of gebruik onze assistent om sneller informatie in de handleiding te vinden of uitleg te krijgen over specifieke functies.
Productinformatie
| Merk | Scotsman |
| Model | Meridian HID540AW |
| Categorie | Niet gecategoriseerd |
| Taal | Nederlands |
| Grootte | 2300 MB |







