Scotsman Meridian HID525AW handleiding
Handleiding
Je bekijkt pagina 4 van 20

HID312AW, HID525AW and HID540AW
Installation and User’s Manual
March 2015
Page 4
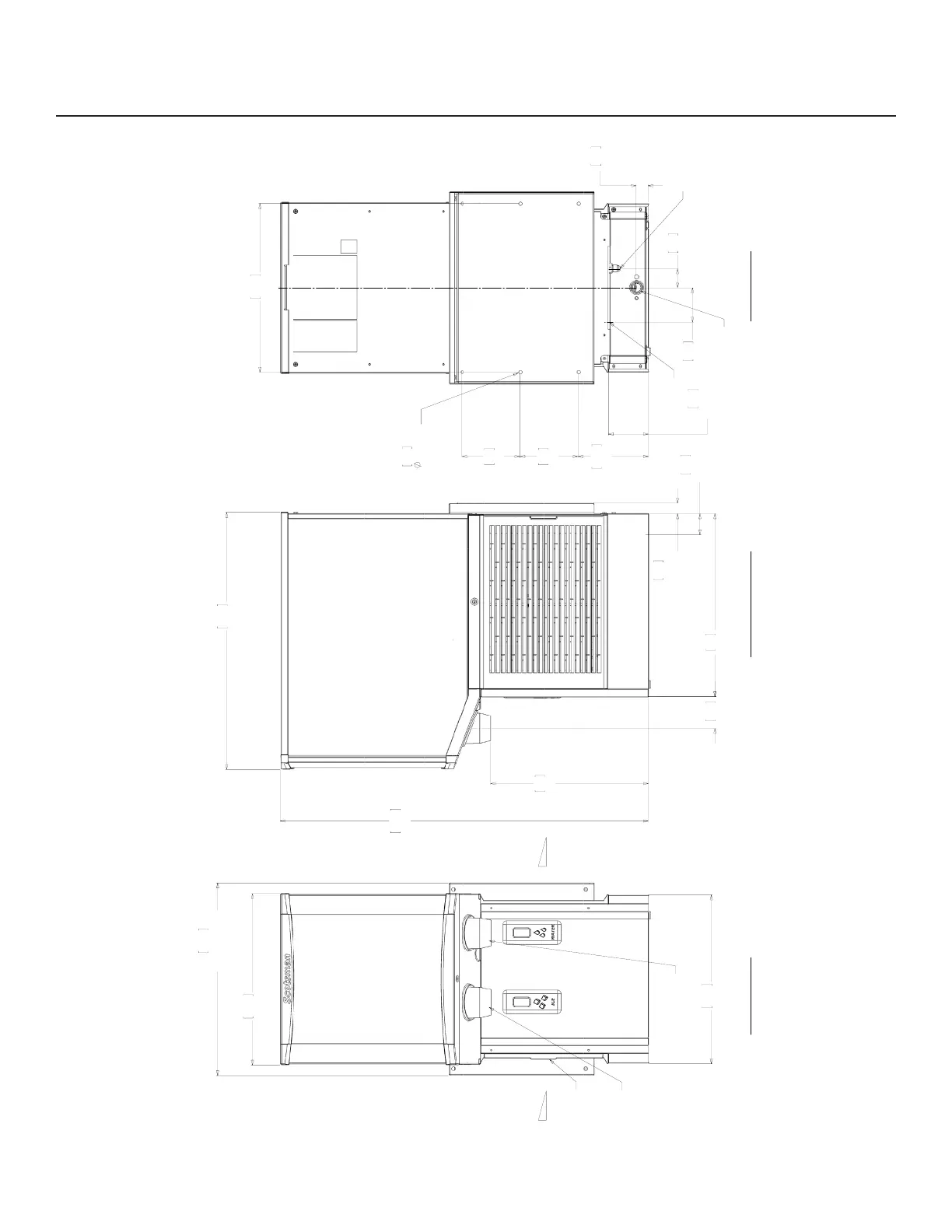
HID312AW Cabinet Drawing
40.6
16.00
41.3
16.25
46.4
18.25
WALL MOUNT
BRACKET
REMOVABLE
AIR FILTER
ICE CHUTE
WATER CHUTE
88.6
34.88
44
17.33
5.1
2.01
UTILITY
CHASE
2.5
1.00
OFFSET
FROM
WALL
38
14.95
61.9
24.38
7.7
3.02
16.9
6.66
14
5.50
0.8
.312
(6) WALL
MOUNT HOLES
9.7
3.80
UTILITY
CHASE
2.8
1.12
40.6
16.00
14
5.50
4.6
1.80
8.3
3.25
3/8" FLARE
WATER INLET
3/4" FPT
DRAIN
POWER
CORD
BACK VIEW
RIGHT SIDE VIEW
AIR FLOW
AIR FLOW
FRONT VIEW
Bekijk gratis de handleiding van Scotsman Meridian HID525AW, stel vragen en lees de antwoorden op veelvoorkomende problemen, of gebruik onze assistent om sneller informatie in de handleiding te vinden of uitleg te krijgen over specifieke functies.
Productinformatie
| Merk | Scotsman |
| Model | Meridian HID525AW |
| Categorie | Niet gecategoriseerd |
| Taal | Nederlands |
| Grootte | 2300 MB |







