Scotsman Meridian HID525 handleiding
Handleiding
Je bekijkt pagina 6 van 25

HID312, HID525 and HID540
Installation and User’s Manual
March 2015
Page 5
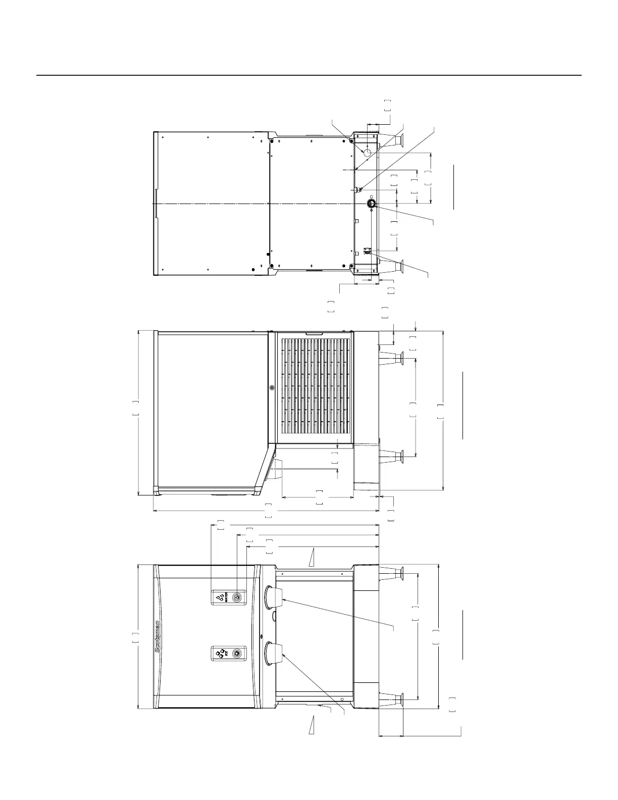
HID525 Cabinet Drawing
54
21.25
54.2
21.36
10.2
4.00
OPTION LEGS
ADJUSTABLE
66
26.00
55.9
22.00
52.1
20.50
47.3
18.62
REMOVABLE
AIR FILTER
ICE CHUTE
WATER CHUTE
AIR
FLOW
AIR
FLOW
61.9
24.38
59.7
23.50
0.3
.12
88.6
34.88
27.9
11.00
5.1
2.01
UTILITY
CHASE
7.7
3.02
36.8
14.50
10.2
4.00
4.6
1.80
3
1.17
9.7
3.80
UTILITY
CHASE
5.1
2.00
18.9
7.45
12.5
4.94
17.8
7.00
3/8" FLARE
WATER INLET
POWER
CORD
3/8 FPT
CONDENSER
WATER INLET
(WC ONLY)
3/4" FPT
DRAIN
1/2 FPT
CONDENSER
DRAIN
(WC ONLY)
BACK VIEW
RIGHT SIDE VIEW
FRONT VIEW
Bekijk gratis de handleiding van Scotsman Meridian HID525, stel vragen en lees de antwoorden op veelvoorkomende problemen, of gebruik onze assistent om sneller informatie in de handleiding te vinden of uitleg te krijgen over specifieke functies.
Productinformatie
| Merk | Scotsman |
| Model | Meridian HID525 |
| Categorie | Niet gecategoriseerd |
| Taal | Nederlands |
| Grootte | 3685 MB |







