Scotsman Meridian HID312 handleiding
Handleiding
Je bekijkt pagina 7 van 25

HID312, HID525 and HID540
Installation and User’s Manual
March 2015
Page 6
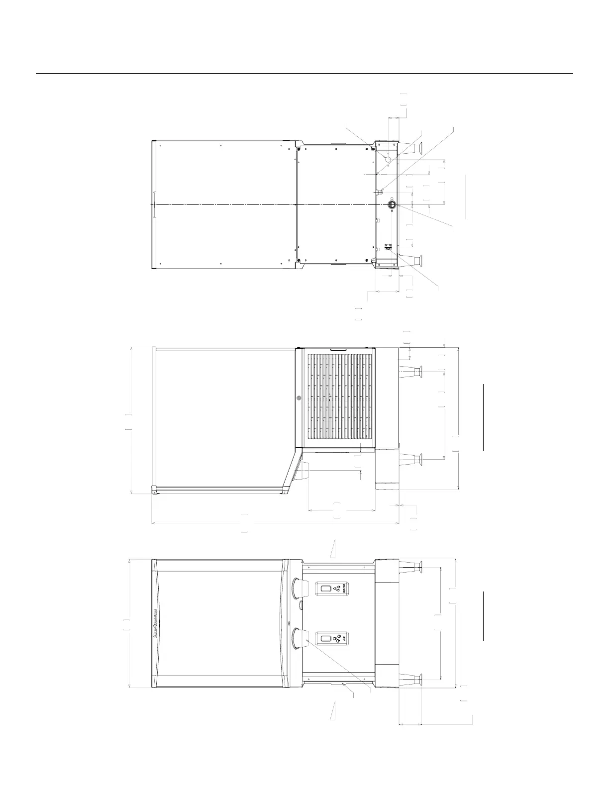
HID540 Cabinet Drawing
54.2
21.36
54
21.25
10.2
4.00
OPTION LEGS
ADJUSTABLE
47.3
18.62
ICE CHUTE
REMOVABLE
AIR FILTER
61.9
24.38
103.8
40.88
27.9
11.00
0.3
.12
59.7
23.50
5.1
2.01
7.7
3.02
10.2
4.00
36.8
14.50
9.7
3.80
UTILITY
CHASE
3
1.17
4.6
1.80
5.1
2.00
18.9
7.45
12.5
4.94
17.8
7.00
POWER
CORD
3/4" FPT
DRAIN
1/2 FPT
CONDENSER
DRAIN
(WC ONLY)
3/8 FPT
CONDENSER
WATER INLET
(WC ONLY)
3/8" FLARE
WATER INLET
AIR FLOWAIR FLOW
BACK VIEW
RIGHT SIDE VIEW
FRONT VIEW
Bekijk gratis de handleiding van Scotsman Meridian HID312, stel vragen en lees de antwoorden op veelvoorkomende problemen, of gebruik onze assistent om sneller informatie in de handleiding te vinden of uitleg te krijgen over specifieke functies.
Productinformatie
| Merk | Scotsman |
| Model | Meridian HID312 |
| Categorie | Niet gecategoriseerd |
| Taal | Nederlands |
| Grootte | 3685 MB |







