Scotsman Meridian HID312 handleiding
Handleiding
Je bekijkt pagina 5 van 25

HID312, HID525 and HID540
Installation and User’s Manual
March 2015
Page 4
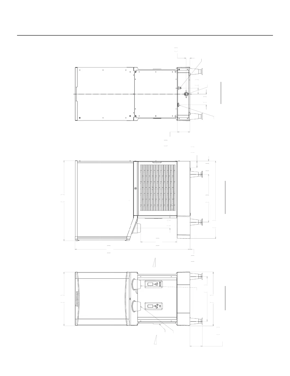
HID312 Cabinet Drawing
41.5
16.36
41.3
16.25
10.2
4.00
OPTION LEGS
ADJUSTABLE
34.6
13.62
REMOVABLE
AIR FILTER
AIR FLOW
ICE CHUTE
WATER CHUTE
88.6
34.88
0.3
.12
27.9
11.00
61.9
24.38
59.7
23.50
5.1
2.01
UTILITY
CHASE
7.7
3.02
10.2
4.00
36.8
14.50
3
1.17
9.7
3.80
UTILITY
CHASE
4.6
1.80
8.3
3.25
3/4" FPT
DRAIN
3/8" FLARE
WATER INLET
POWER
CORD
FRONT VIEW
RIGHT SIDE VIEW
BACK VIEW
AIR FLOW
Bekijk gratis de handleiding van Scotsman Meridian HID312, stel vragen en lees de antwoorden op veelvoorkomende problemen, of gebruik onze assistent om sneller informatie in de handleiding te vinden of uitleg te krijgen over specifieke functies.
Productinformatie
| Merk | Scotsman |
| Model | Meridian HID312 |
| Categorie | Niet gecategoriseerd |
| Taal | Nederlands |
| Grootte | 3685 MB |







