Scotsman HID540AWX handleiding
Handleiding
Je bekijkt pagina 8 van 24

HID312AWX, HID525AWX and HID540AWX
Installation and User’s Manual
January 2025
Page 5
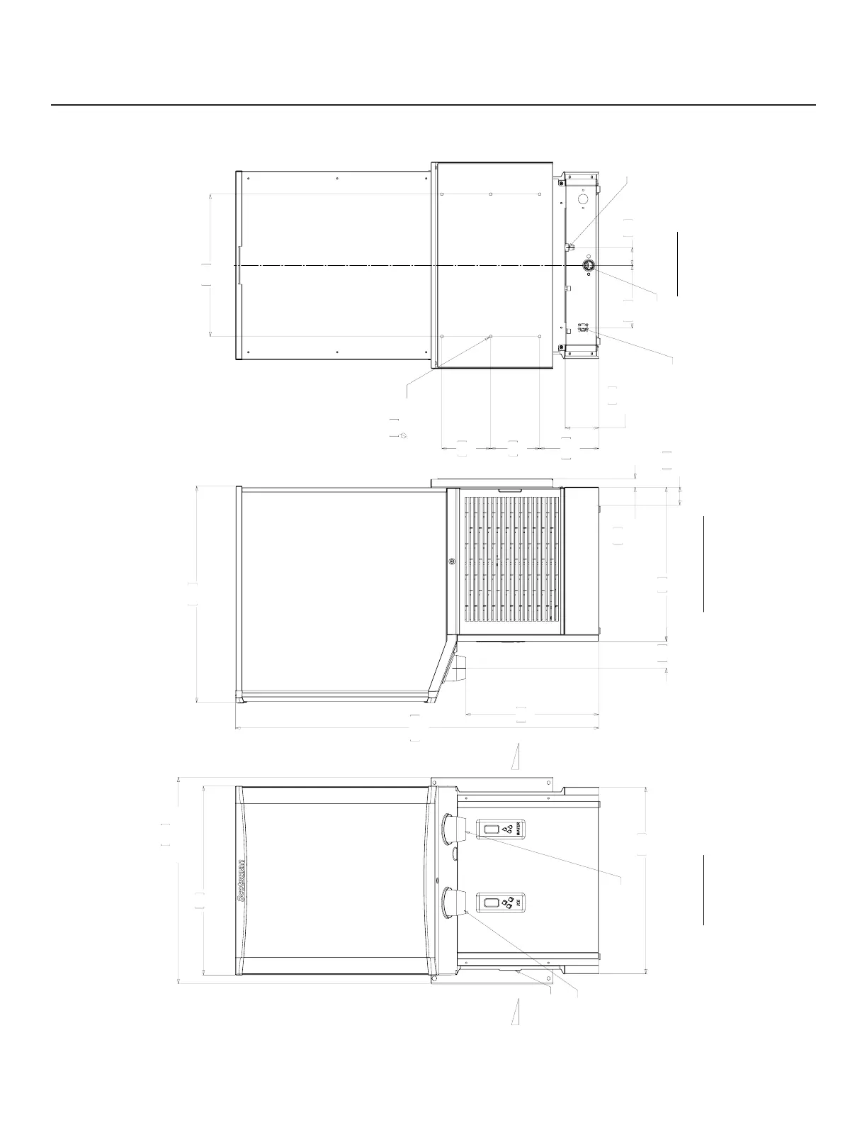
HID540AWX Cabinet Drawing
54
21.25
59.1
23.25
WALL MOUNT
BRACKET
53.3
21.00
REMOVABLE
AIR FILTER
ICE CHUTE
WATER CHUTE
61.9
24.38
38
14.95
103.8
40.88
44
17.33
2.5
1.00
OFFSET
FROM
WALL
5.1
2.01
UTILITY
CHASE
7.7
3.02
14
5.50
16.9
6.66
9.7
3.80
UTILITY
CHASE
17.9
7.05
0.8
.312
(6) WALL
MOUNT HOLES
14
5.50
40.6
16.00
5.1
2.00
3/8" FLARE
WATER INLET
3/4" FPT
DRAIN
POWER
CORD
BACK VIEW
RIGHT SIDE VIEW
FRONT VIEW
AIR FLOW
AIR FLOW
Bekijk gratis de handleiding van Scotsman HID540AWX, stel vragen en lees de antwoorden op veelvoorkomende problemen, of gebruik onze assistent om sneller informatie in de handleiding te vinden of uitleg te krijgen over specifieke functies.
Productinformatie
| Merk | Scotsman |
| Model | HID540AWX |
| Categorie | Niet gecategoriseerd |
| Taal | Nederlands |
| Grootte | 2772 MB |







