Scotsman HID312AWX handleiding
Handleiding
Je bekijkt pagina 6 van 24

HID312AWX, HID525AWX and HID540AWX
Installation and User’s Manual
January 2025
Page 3
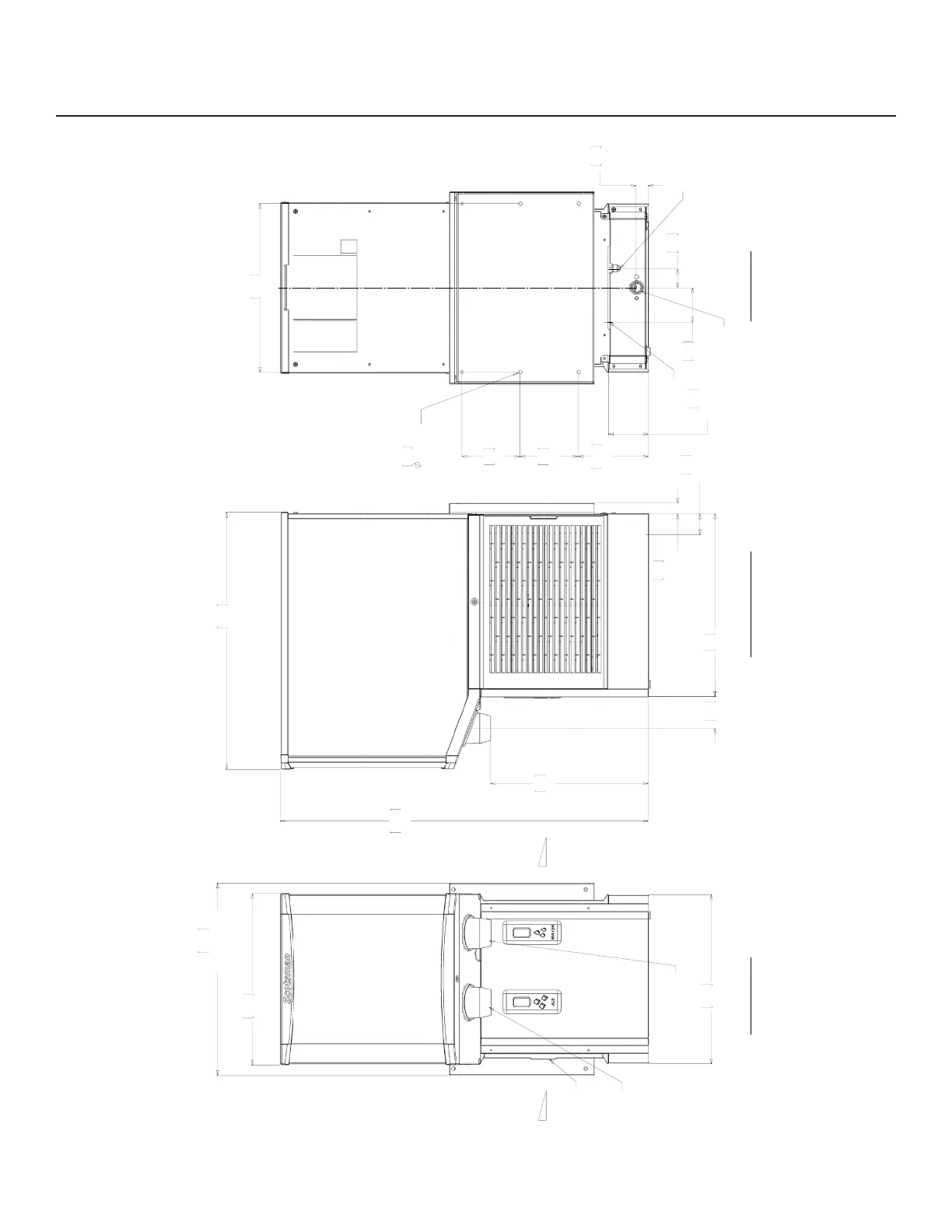
HID312AWX Cabinet Drawing
40.6
16.00
41.3
16.25
46.4
18.25
WALL MOUNT
BRACKET
REMOVABLE
AIR FILTER
ICE CHUTE
WATER CHUTE
88.6
34.88
44
17.33
5.1
2.01
UTILITY
CHASE
2.5
1.00
OFFSET
FROM
WALL
38
14.95
61.9
24.38
7.7
3.02
16.9
6.66
14
5.50
0.8
.312
(6) WALL
MOUNT HOLES
9.7
3.80
UTILITY
CHASE
2.8
1.12
40.6
16.00
14
5.50
4.6
1.80
8.3
3.25
3/8" FLARE
WATER INLET
3/4" FPT
DRAIN
POWER
CORD
BACK VIEW
RIGHT SIDE VIEW
AIR FLOW
AIR FLOW
FRONT VIEW
Bekijk gratis de handleiding van Scotsman HID312AWX, stel vragen en lees de antwoorden op veelvoorkomende problemen, of gebruik onze assistent om sneller informatie in de handleiding te vinden of uitleg te krijgen over specifieke functies.
Productinformatie
| Merk | Scotsman |
| Model | HID312AWX |
| Categorie | Niet gecategoriseerd |
| Taal | Nederlands |
| Grootte | 2772 MB |







