Handleiding
Je bekijkt pagina 41 van 48

41
NL
INDUZIONEINDUCTIONINDUCTION)NDUKTION
INDUCCIØNINDUCTIEINDUÎÍO
aria - air - air - Luft - aire - lucht - ar
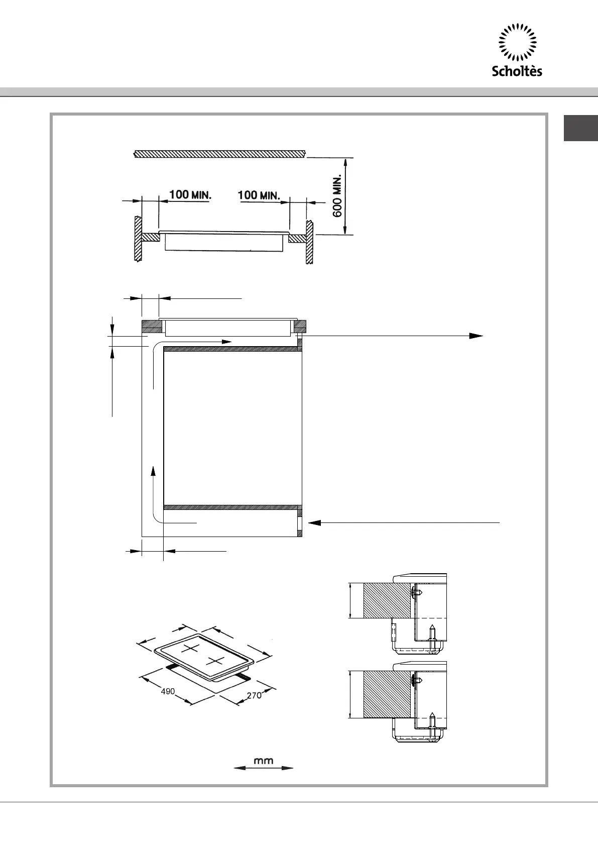
100 cm
2
MIN.
induzione - induction - induction - Induktion
- inducción - inductie - indução
aria - air - air - Luft - aire - lucht - ar
100 cm
2
MIN.
ZONA FORNO O ARMADIETTO
OVEN ZONE OR CUPBOARD
ZONE FOUR OU PLACARD
OFENBEREICH ODER SCHRANK
ZONA HORNO O ARMARIO
OVENRUIMTE OF KASTJE
ZONA DO FORNO OU ARMÁRIO
LATOSIDECÙTÏLADOZIJKANTSEITE
50 MIN.
50 MIN.
20 MIN.
(2 x 500)
40 mm.
30 mm.
303
520
Afb.5
Voorkant
Inductie
OVENRUIMTE OF
KASTJE
Inductie
Zijkant
Lucht
Lucht
Bekijk gratis de handleiding van Scholtes MIN32LS, stel vragen en lees de antwoorden op veelvoorkomende problemen, of gebruik onze assistent om sneller informatie in de handleiding te vinden of uitleg te krijgen over specifieke functies.
Productinformatie
| Merk | Scholtes |
| Model | MIN32LS |
| Categorie | Fornuis |
| Taal | Nederlands |
| Grootte | 4657 MB |

