Samsung WH46DBH500GV handleiding
Handleiding
Je bekijkt pagina 134 van 328

Installation
Français26
Conditions d'installation
Exigences communes
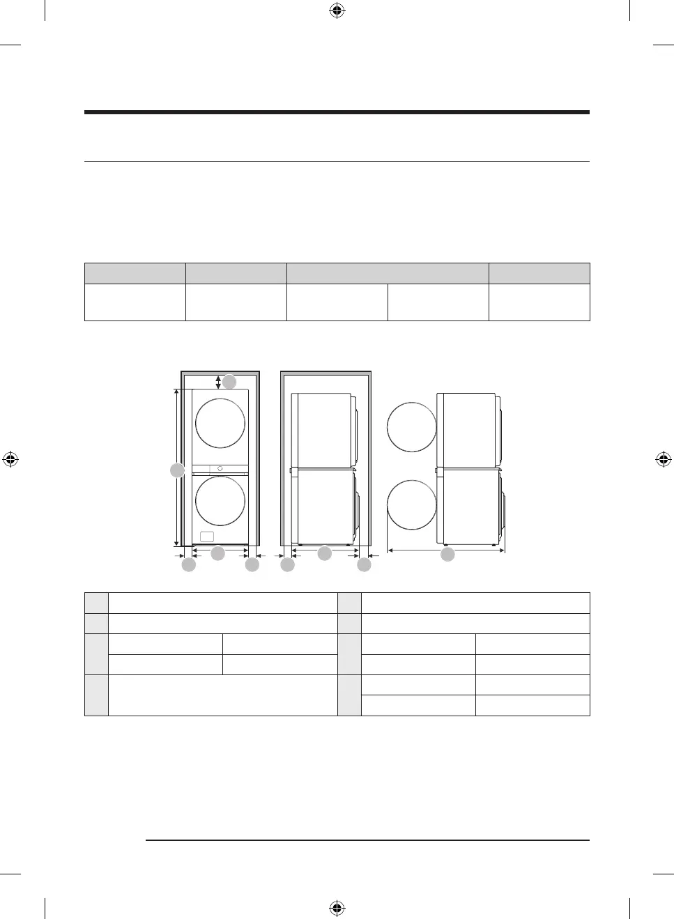
Dégagement requis
Encastrement dans une niche ou installation dans un placard
Dégagement minimal pour une stabilité optimale :
Côtés Haut Arrière Avant
1 po (25 mm) 1 po (25 mm)
WH46DBH5****
4 po (100 mm)
WH53DBH7****
2 po (50 mm)
0,7 po (18 mm)
Le panneau avant de la niche ou du placard doit être doté de deux ouvertures non obstruées pour une surface totale
combinée d'au moins 72 po
2
(465 cm
2
).
E
D
H
F G
CBAA
A 1 po (25 mm) E 1 po (25 mm)
B 0,7 po (18 mm) F 27 po (686 mm)
C
WH46DBH5**** 4 po (100 mm)
G
WH46DBH5**** 31,3 po (796 mm)
WH53DBH7**** 2 po (50 mm) WH53DBH7**** 34,4 po (875 mm)
D 74,4 po (1890 mm) H
WH46DBH5**** 53,1 po (1349 mm)
WH53DBH7**** 55,9 po (1420 mm)
Untitled-2 26 2023-12-18() 5:53:26
Bekijk gratis de handleiding van Samsung WH46DBH500GV, stel vragen en lees de antwoorden op veelvoorkomende problemen, of gebruik onze assistent om sneller informatie in de handleiding te vinden of uitleg te krijgen over specifieke functies.
Productinformatie
| Merk | Samsung |
| Model | WH46DBH500GV |
| Categorie | Wasmachine |
| Taal | Nederlands |
| Grootte | 31418 MB |







