Handleiding
Je bekijkt pagina 36 van 66

36
Testing operations
1. Check the power supply between the outdoor unit and the auxiliary circuit breaker.
1 phase power supply : L, N
3 phases power supply : R,S,T,N
2. Check the indoor unit.
1) Check that you have connected the power and communication cables correctly. (If the power cable and
communication cables one mixed up or connected incorrectly, the PCB will be damaged.)
2) Check the thermistor sensor, drain pump/hose, and display are connected correctly.
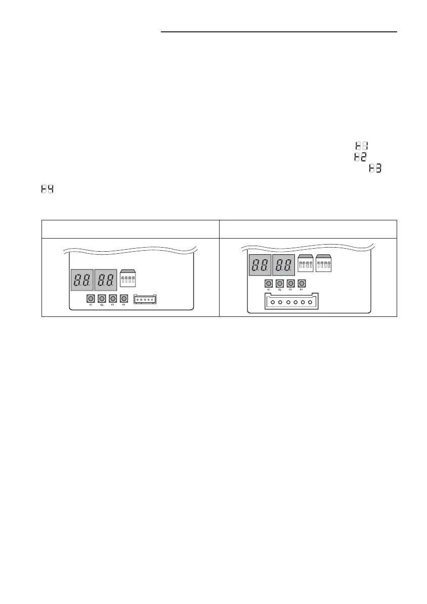
3. Press K1 or K2 on the outdoor unit PCB to run the test mode and stop.
Press K1 button Start Heating test mode Press K1 button Stop Heating test mode 7-seg display :
Press K2 button Start Cooling test mode Press K2 button Stop Cooling test mode 7-seg display :
Press K1 button twice Start Defrost test mode Press K1 button Stop Defrost test mode 7-seg display :
Press K2 button twice StartInverter Checkermode Press K2 button Stop Inverter Checkermode 7-seg display :
(For a service only (ACTTTHCATTH, ACTTTJXATTH, AC100JXADEH1))
Condition 1 : The outdoor temperature is under 10°C
Condition 2 : All the temperature conditions should meet the defrost conditions
Outdoor unit
(Except ACTTTHCATTH, ACTTTJXATTH, AC100JXADEH1)
Outdoor unit
(Only ACTTTHCATTH, ACTTTJXATTH, AC100JXADEH1)
ON
1 2 3 4
ON
1 2 3 4
ON
1 2 3 4
4. After 12 minutes of stationary condition check each indoor unit air treatment :
Cooling mode(indoor unit check) Inlet air temp. - Outlet air temp. : From 10°C to 12°C
Heating mode(indoor unit check) Outlet air temp. - Inlet air temp. : From 11°C to 14°C
In heating mode, the indoor fan motor can remain o to avoid cold air blown into conditioned space.
5. How to reset the power supply of the outdoor unit and deactivate the eco mode (standby mode) :
Outdoor unit type A, B, and C :
Press [K3] button over 1 sec to reset the power supply of the outdoor unit and deactivate the eco mode (standby
mode) Only for AC090FCATTT, AC100FCATTT, RC090TTT, RC100TTT, RC125TTT, RC140TTT,
ACTTTHCATTH, ACTTTJXATTH, AC100JXADEH1 series model.
CAC GD-EU_IM_32793A-23_EN.indd 36 2016-05-25 오후 7:08:48
Bekijk gratis de handleiding van Samsung RC140PHXEA, stel vragen en lees de antwoorden op veelvoorkomende problemen, of gebruik onze assistent om sneller informatie in de handleiding te vinden of uitleg te krijgen over specifieke functies.
Productinformatie
Merk | Samsung |
Model | RC140PHXEA |
Categorie | Airco |
Taal | Nederlands |
Grootte | 7101 MB |