Samsung AR24KRFHRWKNMG handleiding
Handleiding
Je bekijkt pagina 36 van 50

35
English
Installation
NOTE
• A flare nut is attached to the end of each pipe
of an evaporator or a service port. Use flare nuts
when connecting the pipes.
• Wire assembly cables are optional. If they are not
supplied, use standard cables.
• The drain plug and the rubber legs are included
only when the air conditioner is supplied without
assembly pipes.
• If these accessories are supplied, they are in the
accessory package or outdoor unit package.
Tools
General tools
• Vacuum pump
(Backward flowing prevention)
• Manifold gauge
• Stud finder
• Torque wrench
• Pipe cutter
• Reamer
• Pipe bender
• Spirit level
• Screwdriver
• Spanner
• Drill
• L-wrench
• Measuring tape
Tools for test operation
• Thermometer
• Resistance meter
• Electroscope
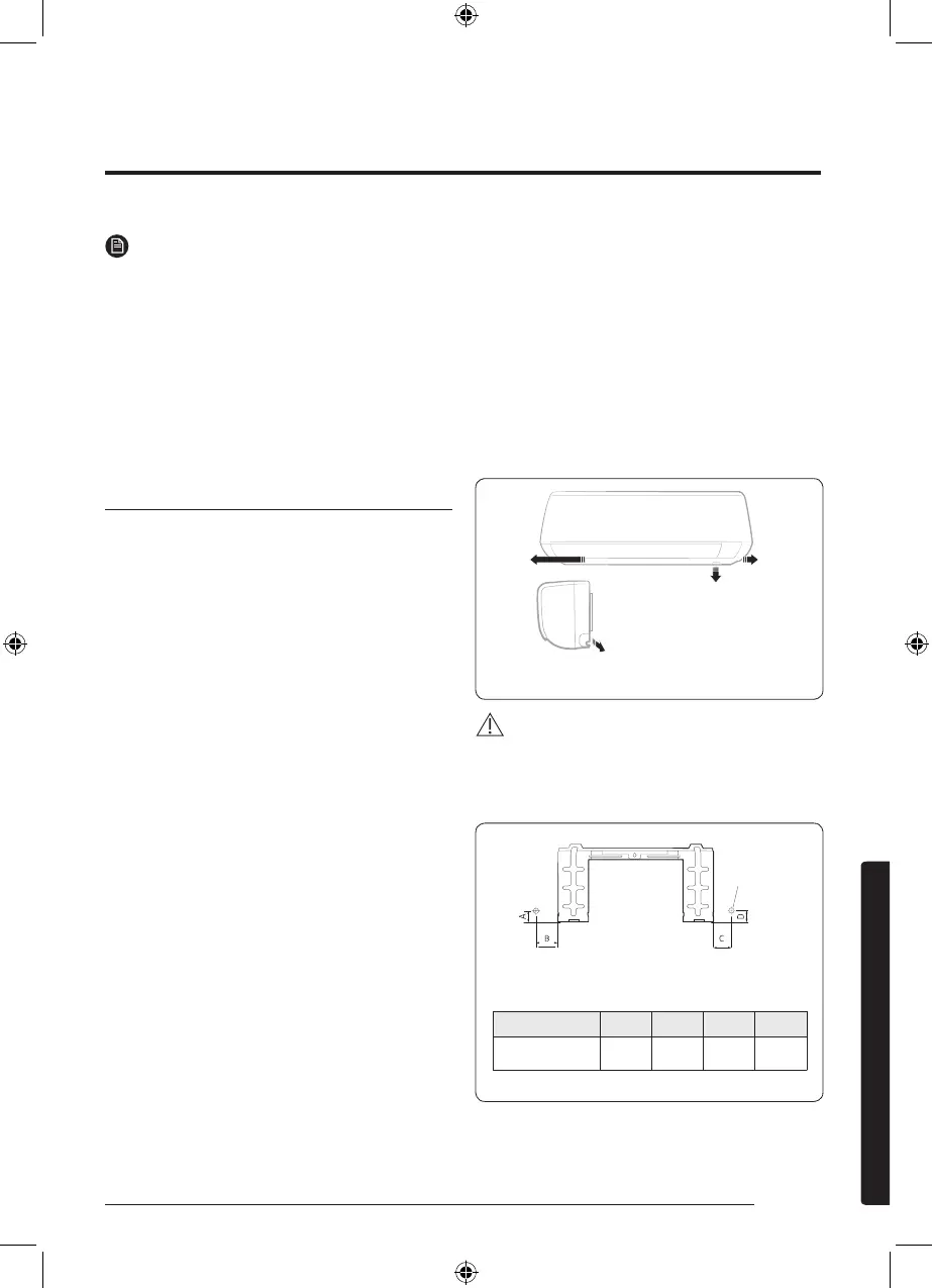
Step 1.4 Drilling a hole through the wall
Before fixing the installation plate to a wall and
then fixing the indoor unit to the installation plate,
a window frame, or a gypsum board, you must
determine the position of a hole (with 65 mm inner
diameter) through which the pipe bundle (consisting
of power and communication cables, refrigerant
pipes, and drain hose) will pass and then drill that
hole.
1 Determine the position of a 65 mm hole in
consideration of the possible directions of the pipe
bundle and the minimum distances between the
hole and the installation plate.
Left Right
Rear right or left
<Possible directions of the pipe bundle>
Bottom right
CAUTION
• If changing the pipe direction from left to right,
do not drastically bent it but slowly turn it in the
opposite direction as shown. Otherwise, the pipe
may be damaged in the process.
Pipe bundle hole
<Minimum distances between the
hole and the installation plate>
(Unit : mm)
Model A B C D
TT18/24TT 38 126 70 38
Pipe bundle hole: Ø 65 mm
EN_DB68-06045A-01.indd 35 2/23/2017 1:07:51 PM
Bekijk gratis de handleiding van Samsung AR24KRFHRWKNMG, stel vragen en lees de antwoorden op veelvoorkomende problemen, of gebruik onze assistent om sneller informatie in de handleiding te vinden of uitleg te krijgen over specifieke functies.
Productinformatie
Merk | Samsung |
Model | AR24KRFHRWKNMG |
Categorie | Niet gecategoriseerd |
Taal | Nederlands |
Grootte | 6725 MB |