Samsung AR19HPFSCWKNHC handleiding
Handleiding
Je bekijkt pagina 32 van 52

English-32
(Unit:mm)
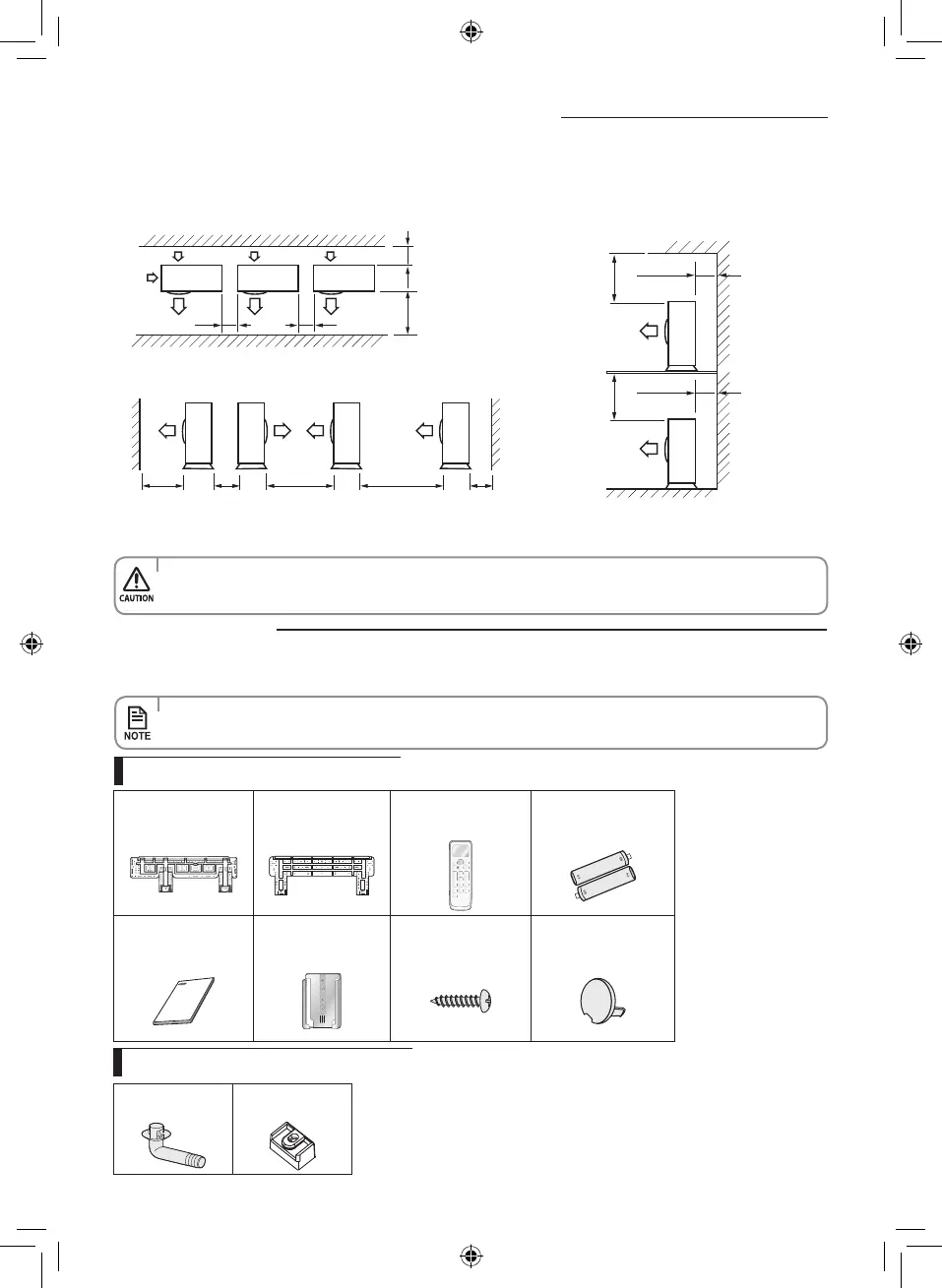
When the upper part of the outdoor unit and
the air outlet is opposite the wall
When the walls are blocking front and the rear side of the outdoor
units
When front and rear side of the outdoor unit is towards the wall
500 or more
300 or more
500 or more
300 or more
300 or
more
1500 or
more
600 or more 600 or more
1500 or
more
600 or
more
3000 or
more
200 or
more
3000 or
more
• Ifinstallationisdoneininappropriatespace,unitmaygeneratesoundandcausebadeectontheproduct.
• Installationmustbedoneinlevelandinaplacewherevibrationwillnotcauseanyeect.
Accessories
Thefollowingaccessoriesaresuppliedwiththeairconditioner:
• Thenumberofeachaccessoryisindicatedinparentheses.
Accessories in the indoor unit case
Installation Plate (1)
✴✴10/13✴✴
Installation Plate (1)
✴✴19/25✴✴
Remote controller (1)
Batteries for Remote
controller (2)
User’s & Installation
Manual (1)
Remote Control Holder
(1)
M4 x 16 Tapped Screws
(2)
Cap Screws (3)
Choosing the installation location
Accessories in the outdoor unit case
Drain Plug (1) Rubber Leg (4)
HC_GOOD_A3050_IB&IM_EN_DB68-04401A-00.indd 32 1/16/2014 9:16:48 PM
Bekijk gratis de handleiding van Samsung AR19HPFSCWKNHC, stel vragen en lees de antwoorden op veelvoorkomende problemen, of gebruik onze assistent om sneller informatie in de handleiding te vinden of uitleg te krijgen over specifieke functies.
Productinformatie
| Merk | Samsung |
| Model | AR19HPFSCWKNHC |
| Categorie | Niet gecategoriseerd |
| Taal | Nederlands |
| Grootte | 6829 MB |







