Samsung AR18HVSD handleiding
Handleiding
Je bekijkt pagina 33 van 56

English-33
INSTALLATION05
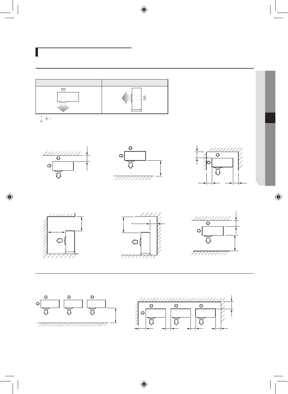
Space Requirements for Outdoor Unit
When installing 1 outdoor unit
300 or more
When the air outlet is opposite
the wall
1500 or more
When the air outlet is towards the
wall
300 or more
150 or more 600 or more
When 3 sides of the outdoor unit
are blocked by the wall
1500 or more
2000 or more
The upper part of the outdoor unit
and the air outlet is towards the wall
500 or more
300 or more
The upper part of the outdoor
unit and the air outlet is opposite
the wall
When the walls are blocking front
and the rear side of the outdoor
unit
300 or
more
1500 or
more
Top view Side view
Air outlet Air intake
Air intake
Air outlet
Figure Description
, Air flow direction.
(Unit:mm)
When installing more than 1 outdoor unit
(Unit:mm)
1500 or more
When the air outlet is towards the wall When 3 sides of the outdoor unit are blocked by the wall
300 or more
300 or more 600 or more 600 or more 600 or more
TC_BETTER_A3050_IB&IM_EN_DB68-04189A-00.indd 33 1/14/2014 1:22:43 PM
Bekijk gratis de handleiding van Samsung AR18HVSD, stel vragen en lees de antwoorden op veelvoorkomende problemen, of gebruik onze assistent om sneller informatie in de handleiding te vinden of uitleg te krijgen over specifieke functies.
Productinformatie
| Merk | Samsung |
| Model | AR18HVSD |
| Categorie | Niet gecategoriseerd |
| Taal | Nederlands |
| Grootte | 7233 MB |







