Handleiding
Je bekijkt pagina 33 van 56

English-33
INSTALLATION07
Choosing the installation location
Outdoor Unit
Where it is not exposed to strong wind
Well ventilated and dustless places
Where possible keep out of sunlight and rain
f
Where neighbors are not annoyed by operation sound or hot air
Solid wall or support that prevents vibration and is strong enough to hold the product weight
Where there is no risk of ammable gas leakage
When installing the unit at a high place be sure to x the unit legs
3 m or more away from the TV or radio (to prevent the screen from being distorted or noise from being generated)
Install the unit horizontally
Place where drained water does not become any problem.
Place with no plants (especially climbing plants) and where small animal can not access.
Outdoor unit should not be place higher than 2.4 m or directly under eaves for accessibility for service and OH&S reasons.
• Avoidthefollowingplacestopreventmalfunctionoftheunit
- Where there is machine oil - Salty environment such as seaside areas
- Where sulde gas exists - Other special atmosphere areas
The appearance of the unit may be dierent from the diagram depending on the model.
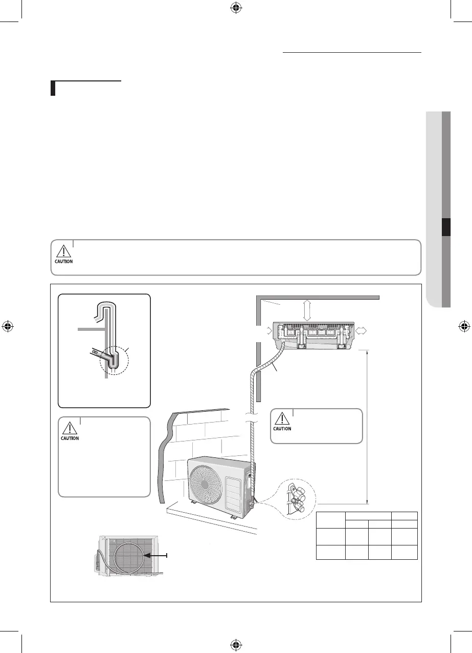
Makeatleastoneround:Itwillhelpreduce
noise and vibration.
Outdoor
Unit
Indoor
Unit
Outer wall
Cut insulation to
have rainwater
drained
Make an U-trap(A) on the
pipe (which is connected
to the indoor unit) at outer
wall and cut the bottom
part of the insulation (about
10mm) to prevent rainwater
from getting inside through
the insulation. However,
be careful not to damage
the pipe.
A
125 mm or
more
100 mm or more
125 mm
or more
'L' meters maximum total pipe
length
Wrap the refrigerant pipes and the
drain hose with the absorbent pad
and vinyl tape. Refer to page 50 for
further details.
You can select the direction
of draining (left or right).
'H' meters
maximum
total pipe
height
'L' m as maximum pipe
length and 3 m as minimum
pipe length. (It will reduce
noise and vibration)
Model
Pipe Length Pipe Height
Minimum Maximum Maximum
✴✴09/12✴✴
✴✴18✴✴
3 15 7
✴✴24✴✴ 3 20 8
SG_GOOD_A3050_IB&IM_EN_DB68-05200A-03.indd 33 2/2/2016 8:26:13 AM
Bekijk gratis de handleiding van Samsung AR12JPFSAWK, stel vragen en lees de antwoorden op veelvoorkomende problemen, of gebruik onze assistent om sneller informatie in de handleiding te vinden of uitleg te krijgen over specifieke functies.
Productinformatie
Merk | Samsung |
Model | AR12JPFSAWK |
Categorie | Airco |
Taal | Nederlands |
Grootte | 7595 MB |