Handleiding
Je bekijkt pagina 50 van 78

50
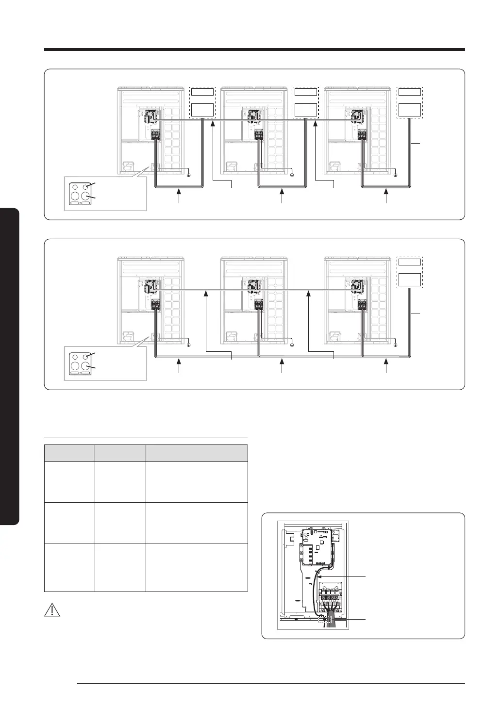
Electrical wiring work
English
Installation Procedure
Protection
tube
Main unit Sub unit Sub unit
Power cable Power cable Power cable
Communication
cable between
outdoor units
Communication
cable between
outdoor units
ELCB
MCCB+
ELB
or
ELCB
MCCB+
ELB
or
ELCB
MCCB+
ELB
or
Ground cableGround cableGround cable
Communication
cable
Power • ground
cable
<When the module combination is in the tables of “Outdoor unit combination”>
Protection
tube
Main unit Sub unit Sub unit
Power cable Power cable Power cable
Communication
cable between
outdoor units
Communication
cable between
outdoor units
ELCB
MCCB+
ELB
or
Ground cableGround cableGround cable
Communication
cable
Power • ground
cable
※ Power Supply cords of parts of appliances for outdoor use shall not be lighter than polychloroprene sheathed flexible cord. (Code
designation IEC:60245 IEC 66 / CENELEC: H07RN-F)
Specification of the protection tube
Name Temper grade Applicable conditions
Flexible PVC
conduit
PVC
When the protection tube
is installed indoor and not
exposed to outside, because it is
embedded in concrete structure
Class 1 flexible
conduit
Galvanized
steel sheet
When the protection tube is
installed indoor but exposed
to outside so there are risk of
damage to the protection tube
Class 1 PVC
coated flexible
conduit
Galvanized
steel sheet
and Soft PVC
compound
When the protection tube is
installed outdoor and exposed
to outside so there are risk of
damage to the protection tube
and extra waterproof is needed
CAUTION
• Caution for perforating the knock-out hole
• Perforate a knock-out hole by punching it with a hammer.
• After perforating the knock-out hole, apply rust resisting paint
around the hole.
• When you need to pass the cables through the knock-out
hole, remove burrs on the hole and protection the cable with a
protection tape or bushing etc.
• Caution for installing communication cable
• When you connect the cable, it may sag and pressed by other
parts. Therefore cables should be fixed to a clamp highlighted
with a box on the illustration.
Path for arranging external
communication cable
Fixing location of the external
communication cable
Bekijk gratis de handleiding van Samsung AM100AXVANR, stel vragen en lees de antwoorden op veelvoorkomende problemen, of gebruik onze assistent om sneller informatie in de handleiding te vinden of uitleg te krijgen over specifieke functies.
Productinformatie
| Merk | Samsung |
| Model | AM100AXVANR |
| Categorie | Airco |
| Taal | Nederlands |
| Grootte | 12459 MB |







