Handleiding
Je bekijkt pagina 37 van 58

37
Nederlands
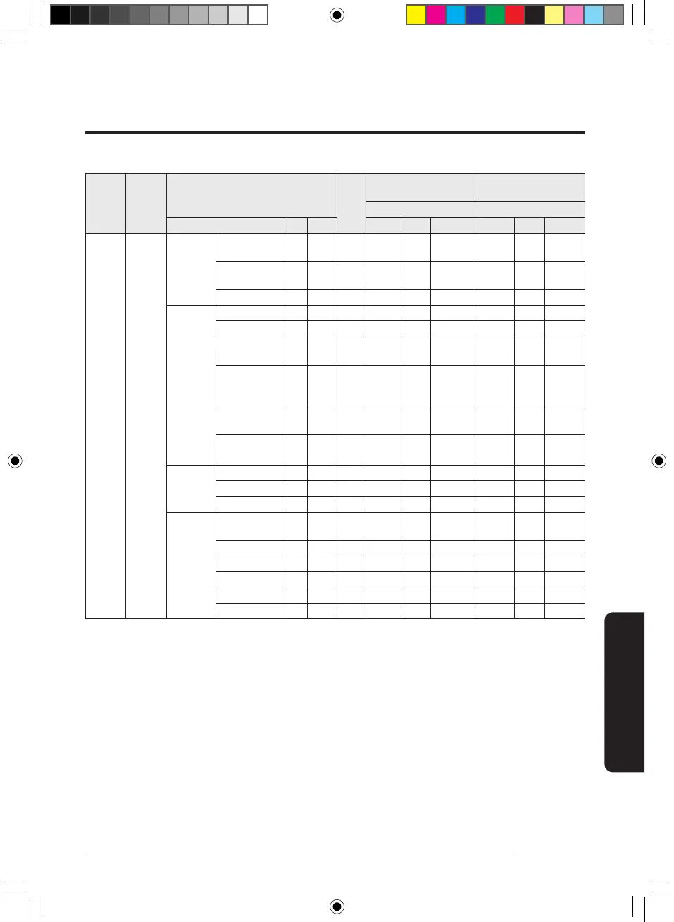
Modus veldinstellingen
Hoofdcode Menu
Functie
Subcode
Modelcode :
AE160DNYMPK / MIM-E03FN
Modelcode : AE160DNZMPK
Instelling standaard Instelling standaard
Item Stap Eenheid Standaard Min. Max. Standaard Min. Max.
Verwarmings-
code 40**
Verwarmen
Warmtepomp
Verwarmings-/SWW-
prioriteit
- - 4011 0(SWW) 0 1(Verwarmen) 0(SWW) 0
1(Verwarmen)
Lage buitentemp. voor
Verwarmingsprioriteit
1 ˚C 4012 0 -15 20 0 -15 20
Temp. verwarming uit 1 ˚C 4013 35/45
(*2)
10 35/45
(*2)
35/45
(*2)
10 35/45
(*2)
Back-
upverwarming
Aan/uit - - 4021 0(Nee) 0 1 0(Nee) 0 1
BUH/BSH-prioriteit 1 - 4022 0 (Beide) 0 (Beide) 2 (BSH) 0 (Beide) 0 (Beide) 2 (BSH)
Back-upverwarming
aan/uit
- - 4023 1 (Ja) 0(Nee) 1 1 (Ja) 0(Nee) 1
Drempeltemperatuur 1 ˚C 4024 0 -25 35 0 -25 35
Back-uptemperatuur
ontdooien
5 ˚C 4025 15 10 55 15 10 55
Externe verwarmer - - 4026 0 0 1 N.V.T. N.V.T. N.V.T.
Back-upboiler
Reserveboiler aan/uit - - 4031 0(Nee) 0 1 (Ja) 0(Nee) 0 1 (Ja)
Boilerprioriteit - - 4032 0(Nee) 0 1 (Ja) 0(Nee) 0 1 (Ja)
Drempelvoorwaarde 1 ˚C 4033 -15 -20 5 -15 -20 5
Mengklep
Toepassing 1 - 4041 0(Nee) 0 2 2(Ja) 0 2
Doel-△T (verwarmen) 1 ˚C 4042 10 5 15 10 5 15
Doel-△T (koelen) 1 ˚C 4043 10 5 15 10 5 15
Controlefactor 1 - 4044 2 1 5 2 1 5
Controle-interval 1 min 4045 1 1 30 1 1 30
Looptijd 1 (x10) sec 4046 12 6 24 12 6 24
DB68-12922A-01_IB_24Y EHS AE7000D_EU_NL_.indd 37DB68-12922A-01_IB_24Y EHS AE7000D_EU_NL_.indd 37 2024-08-02 오후 2:49:272024-08-02 오후 2:49:27
Bekijk gratis de handleiding van Samsung AE200DNXMPK, stel vragen en lees de antwoorden op veelvoorkomende problemen, of gebruik onze assistent om sneller informatie in de handleiding te vinden of uitleg te krijgen over specifieke functies.
Productinformatie
Merk | Samsung |
Model | AE200DNXMPK |
Categorie | Airco |
Taal | Nederlands |
Grootte | 7428 MB |