Handleiding
Je bekijkt pagina 7 van 46

7
ENGLISH
Indoor unit installation
Refrigerant pipe work must be done before installing the indoor unit.
Location
Access for servicing is an important factor in the location of any air handler. Provide a minimum of 30 inches in front of the
appliance for access to the control box, heating elements, blower and air lters. This access may be provided by a closet door or
by locating the appliance so that a wall or partition is not less than 30 inches from the front access panel. Consider the following
in choosing a suitable location.
1. Select a location with adequate structural support, space for service access, and clearance for return and supply duct
connections.
2. Normal operating sound levels may be objectionable if the air handler is placed directly over or under some rooms such as
bedrooms, study, etc.
3. Caution should be taken to locate the unit so that supply and return air ducts are about the same length causing even air
distribution of supply and return air to and from the living spaces.
4. Locate appliance where electrical supply wiring can be easily routed to main electrical panel and where electrical wiring will
not be damaged.
5. Locate appliance where control wiring can be easily routed to the controller and where the wiring will not be damaged.
6. Locate appliance where refrigerant lines can be easily routed from the indoor unit to the outdoor unit.
7. Locate the appliance where condensate lines can be easily routed to an available drain. Be sure to route condensate drain
piping to not obstruct access to the air lter.
8. The coil is installed in a draw-thru application and will create a negative pressure situation in the condensate drain system.
To prevent condensate from being drawn into the blower it is recommended to trap the primary (Main) and secondary
(Overow) drain line. Refer to Drain Pipe and Drain Hose section in these instructions. If the secondary drain is not used,
it must be capped. This unit has a connection terminal for drain system monitoring. Refer to Wiring Work section for
information regarding connection of eld-provided condensate overow device in these instructions.
9. The draw-thru design will cause exterior surface of cabinet to sweat when unit is installed in a non-conditioned space
such as an attic or garage. Installer must provide protection such as full size auxiliary drain pan on all units installed in a
non-conditioned space to prevent damage from condensation runo. Some states, cities and counties require additional
insulation to be installed on the exterior casing of the air handler to prevent sweating. Refer to the state, city, county or local
code for insulation requirement to be sure the installation is in compliance. It is recommended that air handlers installed in
non-conditioned spaces be insulated on the exterior of the entire cabinet, including the front access panel with one (1) inch
thick berglass with the vapor barrier on the outside.
10. Ensure sucient space for the bottom of the product (H dimension) so that a downward slope of 1/100 can be maintained
for drain piping, as described for the intake duct installation and in “Drain pipe installation”.
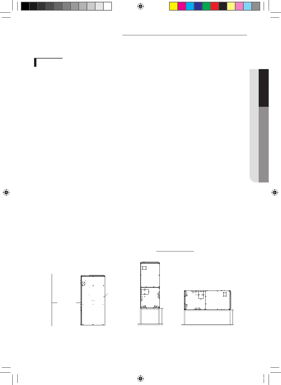
H
H
Clearance - Access for service
30" minimum
Right side of unit
Vertical installation Horizontal installation
CAC ODM V-AHU_IM_NOTCODE_ENG.indd 7 2016-10-18 오전 11:21:11
Bekijk gratis de handleiding van Samsung AC048KNZDCH, stel vragen en lees de antwoorden op veelvoorkomende problemen, of gebruik onze assistent om sneller informatie in de handleiding te vinden of uitleg te krijgen over specifieke functies.
Productinformatie
Merk | Samsung |
Model | AC048KNZDCH |
Categorie | Airco |
Taal | Nederlands |
Grootte | 5501 MB |