Handleiding
Je bekijkt pagina 56 van 451

Instalace
24
CS
Instalace
Vybalení
VAROVÁNÍ!
▶ Spotřebič je těžký. Vždy s ním manipulujte alespoň ve dvou osobách.
▶ Uchovávejte všechny obalové materiály mimo dosah dětí a zlikvidujte
je způsobem šetrným k životnímu prostředí.
▶ Vyjměte spotřebič z obalu.
▶ Odstraňte všechny obalové materiály.
Podmínky prostředí
Pokojová teplota by měla být vždy mezi 10 °C a 43 °C, protože může ovlivňovat
teplotu uvnitř spotřebiče a jeho spotřebu energie. Neinstalujte spotřebič
do blízkosti jiných spotřebičů vytvářejících teplo (trub, chladniček).
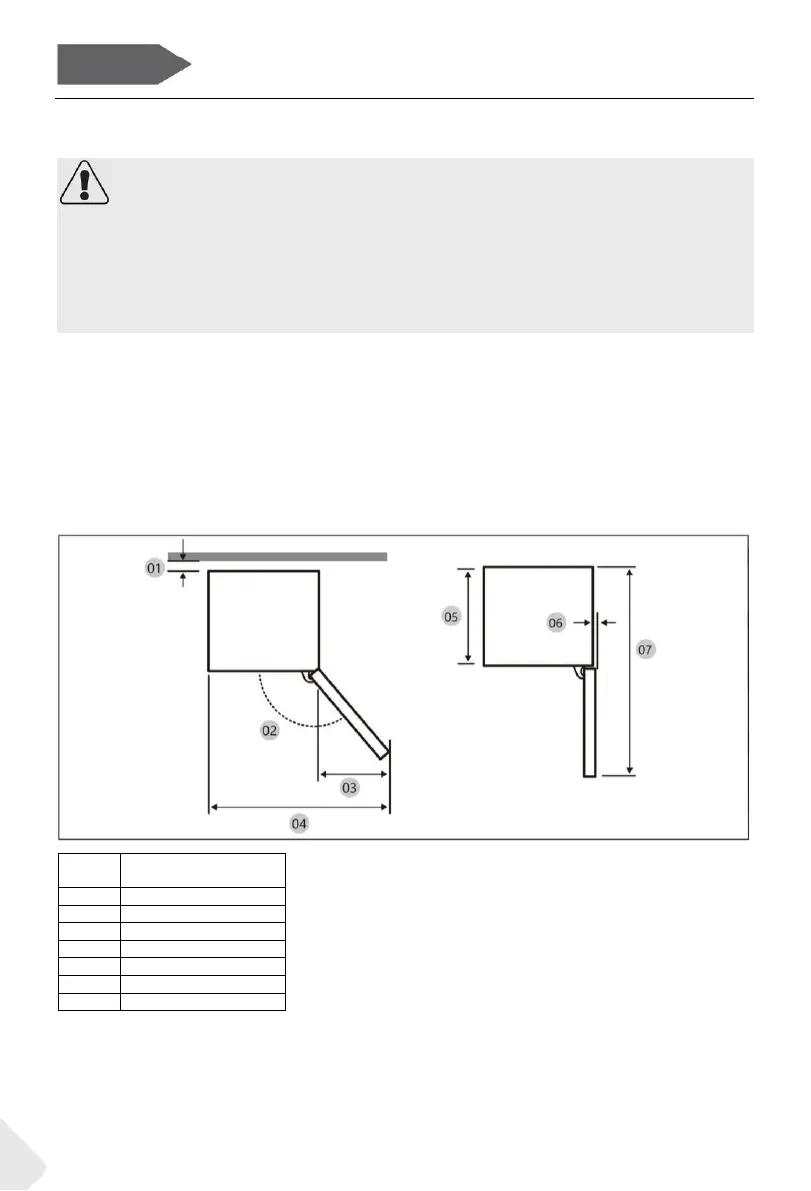
Doporučený volný prostor
Doporučený prostor s otevřenými dvířky (bez dveřního panelu skříně)
Model
CMT5518EVWF
RMT5518EVWF
01*
10 (min.) / 30 (doporučeno)
02
95° (doporučeno)
03
43
04
583
05
515
06
-3
07
1060
* 01: Od skříně k zadní straně výrobku.
(jednotky: mm)
Bekijk gratis de handleiding van Rosieres RMT5518EVWF, stel vragen en lees de antwoorden op veelvoorkomende problemen, of gebruik onze assistent om sneller informatie in de handleiding te vinden of uitleg te krijgen over specifieke functies.
Productinformatie
| Merk | Rosieres |
| Model | RMT5518EVWF |
| Categorie | Vriezer |
| Taal | Nederlands |
| Grootte | 51535 MB |