Handleiding
Je bekijkt pagina 408 van 451

Inštalácia
24
SK
Inštalácia
Vybalenie
VAROVANIE!
▶ Spotrebič je ťažký. Musia s ním vždy manipulovať dve osoby.
▶ Všetky obalové materiály udržujte mimo dosahu detí a zlikvidujte ich spôsobom,
ktorý je šetrný k životnému prostrediu.
▶ Vyberte spotrebič z obalu.
▶ Odstráňte všetok obalový materiál.
Podmienky prostredia
Teplota v miestnosti musí byť vždy v rozsahu 10 °C až 43 °C, pretože môže mať
vplyv na teplotu vnútri spotrebiča a na jeho spotrebu energie. Spotrebič neinštalujte
v blízkosti iných spotrebičov sálajúcich teplo (rúry, chladničky)
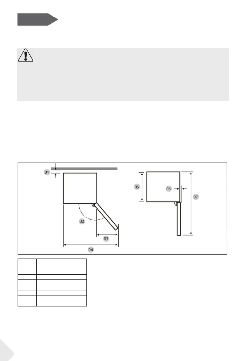
Návrh priestoru
Odporúčaný priestor pri otvorených dverách (bez panelu dverí skrinky)
Model
CMT5518EVWF
RMT5518EVWF
01*
10 (min.) / 30 (odporúčané)
02
95° (odporúčané)
03
43
04
583
05
515
06
-3
07
1060
* 01: Od skrinky po zadnú stenu spotrebiča.
(jednotka: mm)
Bekijk gratis de handleiding van Rosieres RMT5518EVWF, stel vragen en lees de antwoorden op veelvoorkomende problemen, of gebruik onze assistent om sneller informatie in de handleiding te vinden of uitleg te krijgen over specifieke functies.
Productinformatie
| Merk | Rosieres |
| Model | RMT5518EVWF |
| Categorie | Vriezer |
| Taal | Nederlands |
| Grootte | 51535 MB |