Handleiding
Je bekijkt pagina 344 van 451

Instalação
24
PT
Instalação
Desembalar
AVISO!
▶ O aparelho é pesado. Deve ser manuseado sempre por, pelo menos, duas pessoas.
▶ Mantenha todos os materiais de embalagem fora do alcance das crianças
e elimine-os de forma ecológica.
▶ Retire o aparelho da embalagem.
▶ Remova todos os materiais de embalagem.
Condições ambientais
A temperatura ambiente deve estar sempre entre 10 °C e 43 °C, uma vez que pode
influenciar a temperatura no interior do aparelho e o seu consumo de energia.
Não instale o aparelho perto de outros aparelhos que emitam calor (fornos, frigoríficos)
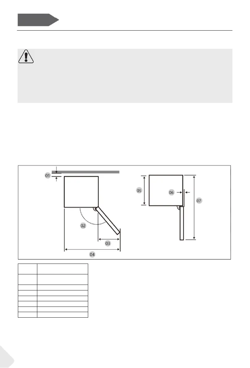
Sugestão de espaço
Espaço sugerido quando a porta está aberta (sem painel da porta do armário)
Modelo
CMT5518EVWF
RMT5518EVWF
01*
10 (Mín.) / 30
(Recomendado)
02
95° (Recomendado)
03
43
04
583
05
515
06
-3
07
1060
* 01: Do armário à traseira do produto.
(unidade: mm)
Bekijk gratis de handleiding van Rosieres RMT5518EVWF, stel vragen en lees de antwoorden op veelvoorkomende problemen, of gebruik onze assistent om sneller informatie in de handleiding te vinden of uitleg te krijgen over specifieke functies.
Productinformatie
| Merk | Rosieres |
| Model | RMT5518EVWF |
| Categorie | Vriezer |
| Taal | Nederlands |
| Grootte | 51535 MB |