Handleiding
Je bekijkt pagina 312 van 451

Instalacja
24
PL
Instalacja
Rozpakowanie
OSTRZEŻENIE!
▶ Urządzenie jest ciężkie. Prace powinny być wykonywane przez co najmniej
dwie osoby.
▶ Wszystkie materiały opakowaniowe należy przechowywać poza zasięgiem dzieci
i utylizować w sposób przyjazny dla środowiska.
▶ Wyjmij urządzenie z opakowania.
▶ Usuń całe opakowanie.
Warunki środowiskowe
Temperatura w pomieszczeniu powinna zawsze wynosić od 10 °C do 43 °C,
ponieważ może wpływać na temperaturę wewnątrz urządzenia i zużycie energii.
Nie instaluj urządzenia w pobliżu innych urządzeń emitujących ciepło
(piekarniki, chłodziarki)
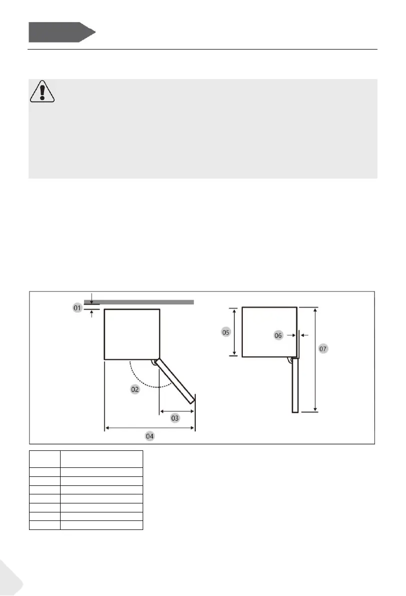
Propozycja przestrzeni
Zalecana przestrzeń po otwarciu drzwi (bez panelu drzwi szafki)
Model
CMT5518EVWF
RMT5518EVWF
01*
10 (min.) / 30 (zalecane)
02
95° (Zalecane)
03
43
04
583
05
515
06
-3
07
1060
* 01: Od szafki do tyłu produktu.
(jednostka: mm)
Bekijk gratis de handleiding van Rosieres RMT5518EVWF, stel vragen en lees de antwoorden op veelvoorkomende problemen, of gebruik onze assistent om sneller informatie in de handleiding te vinden of uitleg te krijgen over specifieke functies.
Productinformatie
| Merk | Rosieres |
| Model | RMT5518EVWF |
| Categorie | Vriezer |
| Taal | Nederlands |
| Grootte | 51535 MB |