Handleiding
Je bekijkt pagina 248 van 451

Installazione
24
IT
Installazione
Disimballo
AVVERTENZA!
▶ L'elettrodomestico è pesante. Per spostarlo occorrono almeno due persone.
▶ Tenere fuori dalla portata dei bambini tutti i materiali di imballaggio e smaltirli nel
rispetto dell'ambiente.
▶ Estrarre l'elettrodomestico dall'imballo.
▶ Togliere tutti i materiali di imballo.
Condizioni ambientali
La temperatura ambiente deve essere sempre compresa tra 10 e 43 °C, poiché può
influire sulla temperatura interna dell'elettrodomestico e sui consumi energetici.
Non installare l'elettrodomestico vicino ad altri elettrodomestici che emettono
calore (forni, frigoriferi)
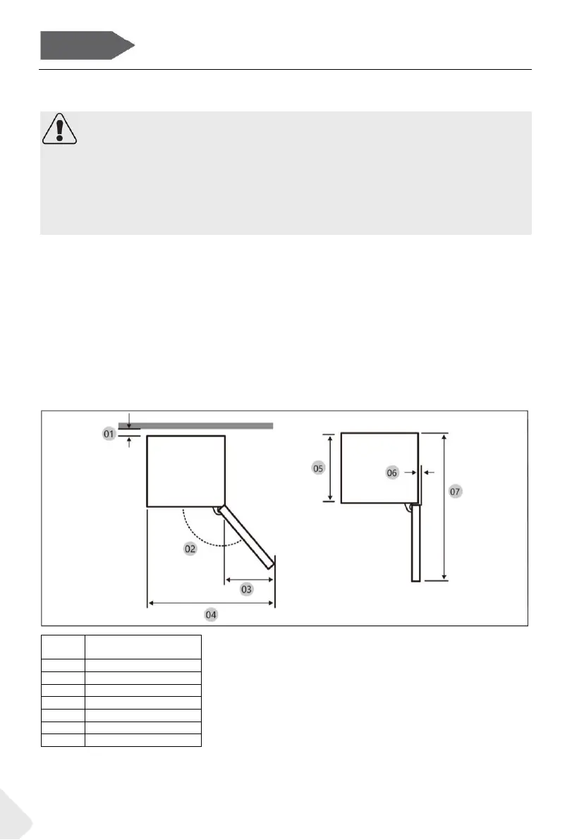
Consiglio di installazione
Spazio consigliato quando lo sportello è aperto (senza pannello dello sportello
del mobile)
Modello
CMT5518EVWF
RMT5518EVWF
01*
10 (min) / 30 (consigliato)
02
95° (consigliato)
03
43
04
583
05
515
06
-3
07
1060
*01: Dal comparto al retro del prodotto.
(unità: mm)
Bekijk gratis de handleiding van Rosieres RMT5518EVWF, stel vragen en lees de antwoorden op veelvoorkomende problemen, of gebruik onze assistent om sneller informatie in de handleiding te vinden of uitleg te krijgen over specifieke functies.
Productinformatie
| Merk | Rosieres |
| Model | RMT5518EVWF |
| Categorie | Vriezer |
| Taal | Nederlands |
| Grootte | 51535 MB |