Handleiding
Je bekijkt pagina 185 van 451

Installation
25
FR
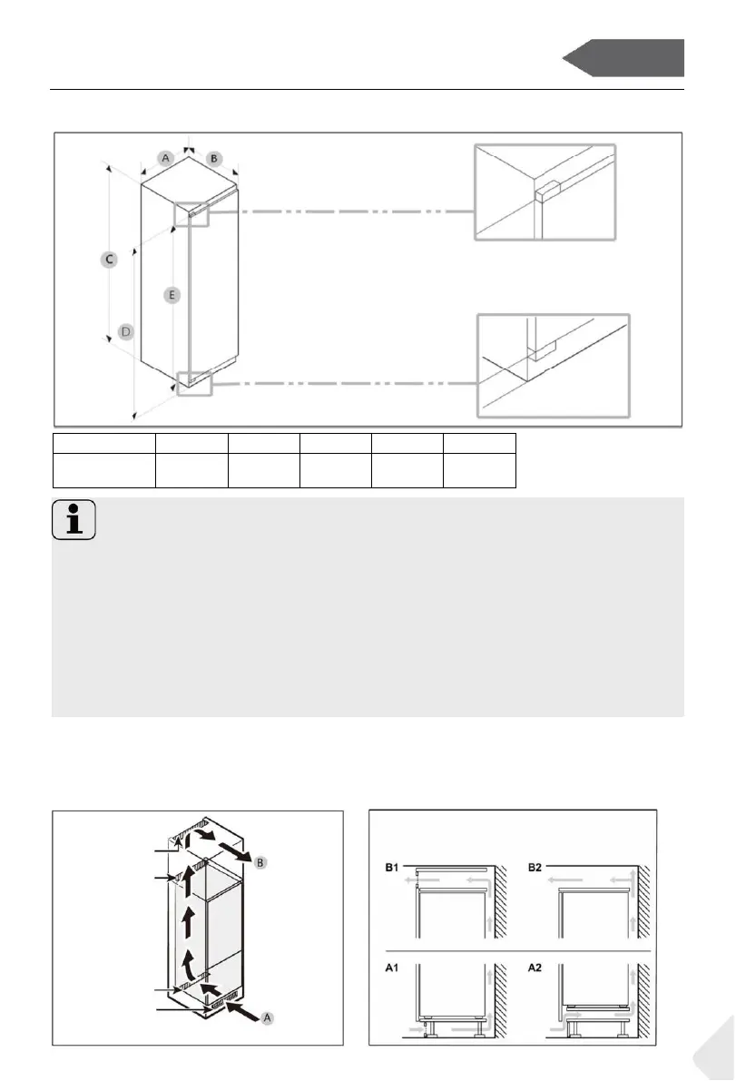
Dimensions du produit
Modèle
A (mm)
B (mm)
C (mm)
D (mm)
E (mm)
CMT5518EVWF
RMT5518EVWF
540±2
550±2
1772±2
1715
1671
INFORMATION
• La consommation d'énergie indiquée est basée sur l'existence d'un espace
de 10 mm entre le meuble et l'arrière du produit. Le produit fonctionne
correctement même si l'écart est inférieur à 10 mm, mais il consomme
un peu plus d'énergie.
• Nous recommandons d'utiliser un meuble de 19 mm d'épaisseur avec des
charnières de moins de 17 mm d'épaisseur.
• Les mesures figurant dans le tableau ci-dessus peuvent différer en fonction
de la méthode de mesure utilisée.
• Pour l'installation encastrée, voir le Guide d'installation.
Coupe transversale de ventilation
Pour obtenir une ventilation suffisante de l’appareil pour des raisons de sécurité,
il convient de respecter les informations relatives aux coupes transversales
de ventilation requises.
200 cm
2
A: Entrée d'air ≥ 200 cm² ; options de ventilation
B: Sortie d'air ≥ 200 cm² ; options de ventilation
200 cm
2
200 cm
2
200 cm
2
Bekijk gratis de handleiding van Rosieres RMT5518EVWF, stel vragen en lees de antwoorden op veelvoorkomende problemen, of gebruik onze assistent om sneller informatie in de handleiding te vinden of uitleg te krijgen over specifieke functies.
Productinformatie
| Merk | Rosieres |
| Model | RMT5518EVWF |
| Categorie | Vriezer |
| Taal | Nederlands |
| Grootte | 51535 MB |