Handleiding
Je bekijkt pagina 37 van 56

37
910 / 1200
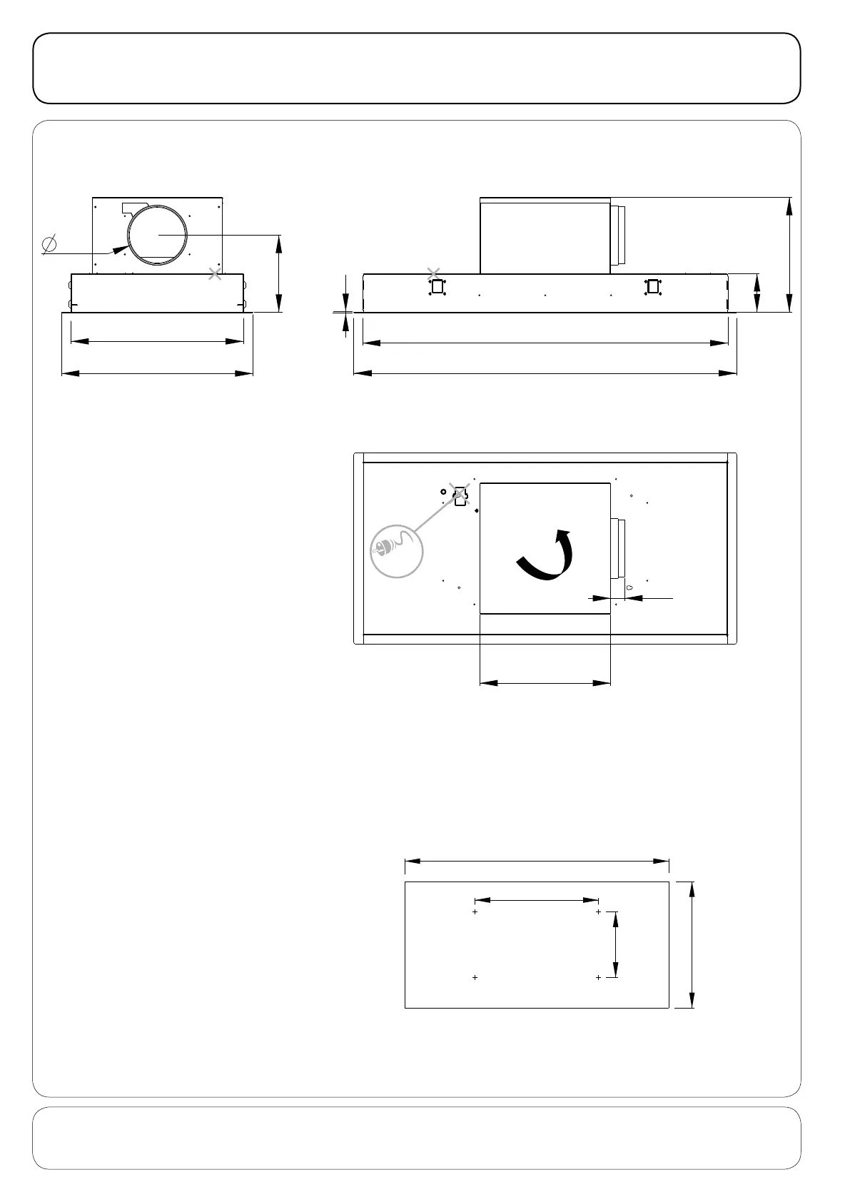
96
296
+20
0
342
36
196
483 / 550
530 / 600
863 / 1150
149
0°
90°
180°
270°
1
450
240
880 /1165
500 / 565
encastrement / housing
L=1m
schéma électrique - electrical diagram - Stromlaufplan - Schema elettrico - esquema eléctrico - Elektrisch schema
A : azur, azur, azur blau / BK : black, noir,schwarz / B : blue, bleu, blau / Br : brown, brun, braun / G-Y : green-yellow, vert-jaune,
grün-gelb / Gr : grey, gris, grau / LB : light blue, bleu clair, hell blau / P : pink, rose, rosa / V : purple, mauve, malver farbig
/ R : red, rouge, rot / W : white, blanc, weiss / W-P : white-pink, blanc-rose, weiss-rosa / Y : yellow, jaune, gelb
Bekijk gratis de handleiding van Roblin High Confidence Plus 1200, stel vragen en lees de antwoorden op veelvoorkomende problemen, of gebruik onze assistent om sneller informatie in de handleiding te vinden of uitleg te krijgen over specifieke functies.
Productinformatie
| Merk | Roblin |
| Model | High Confidence Plus 1200 |
| Categorie | Afzuigkap |
| Taal | Nederlands |
| Grootte | 6082 MB |







