Rittal AX 1073.000 handleiding
Handleiding
Je bekijkt pagina 32 van 49

32 AX Kompakt-Schaltschränke, Stahlblech / AX compact enclosures, sheet steel / Corets électriques AX en tôle d’acier
4
Ø 9.25
5
Ø 6.5
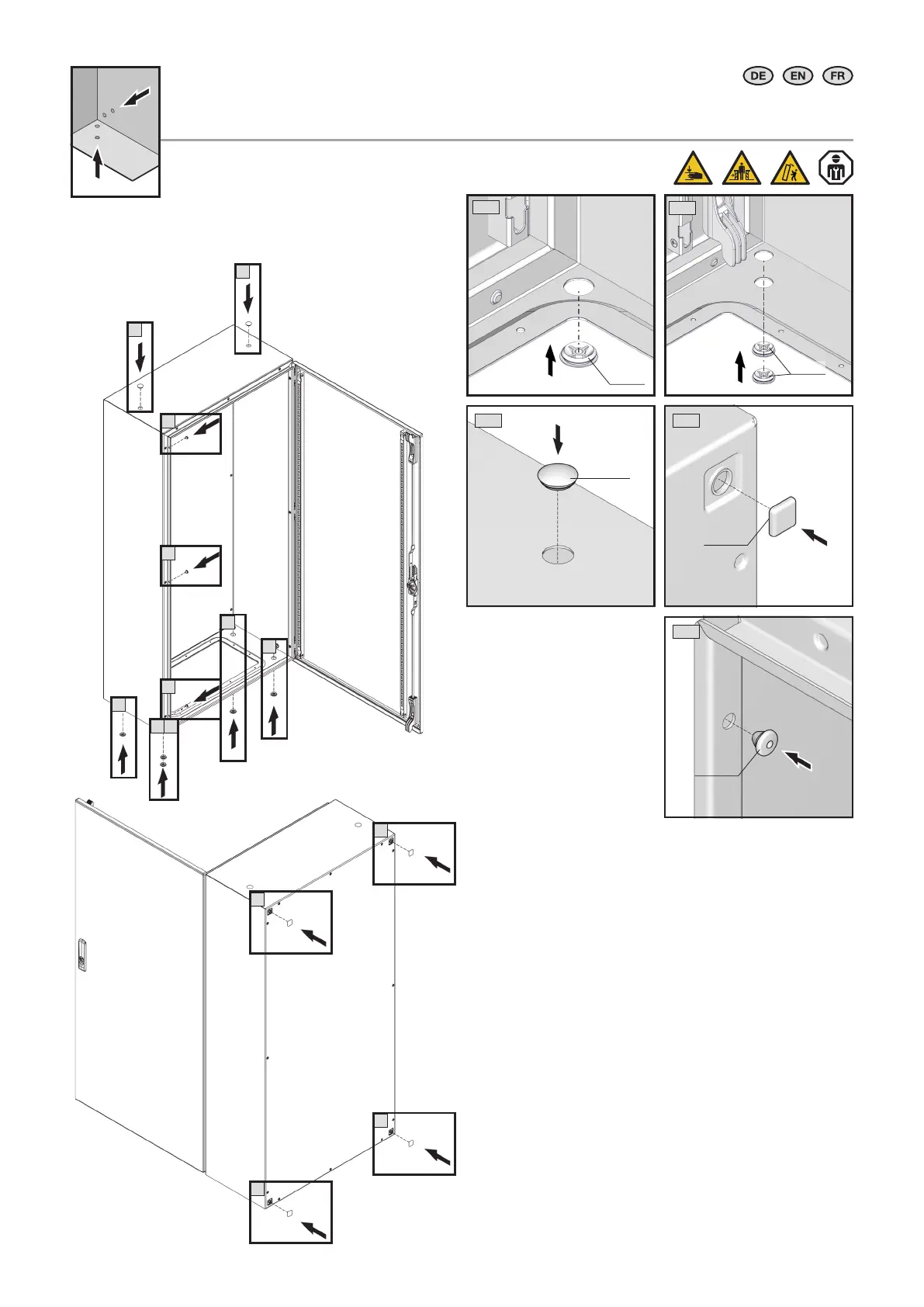
4.6 Anbringen der Abdichtstopfen
4.6 Inserting the sealing bungs
4.6 Montage des bouchons d’étanchéité
1)
bei/for/pour
AX 1055.000, AX 1059.000,
AX 1091.000, AX 1110.000,
AX 1114.000, AX 1115.000,
AX 1116.000, AX 1180.000,
AX 1181.000, AX 1130.000,
AX 1213.000, AX 1214.000
AX 1260.000, AX 1261.000,
AX 1280.000, AX 1281.000,
AX 1095.000, AX 1096.000,
AX 1112.000, AX 1113.000,
AX 1261.450, AX 1055.450,
AX 1281.450, AX 1091.450
3
1)
Ø16
4. Montage und Aufstellung
4. Assembly and siting
4. Montage et implantation
1
3
5
5
5
3
1
1
1
4
4
4
4
2
1)
Ø16
1
Ø16
2
Bekijk gratis de handleiding van Rittal AX 1073.000, stel vragen en lees de antwoorden op veelvoorkomende problemen, of gebruik onze assistent om sneller informatie in de handleiding te vinden of uitleg te krijgen over specifieke functies.
Productinformatie
Merk | Rittal |
Model | AX 1073.000 |
Categorie | Niet gecategoriseerd |
Taal | Nederlands |
Grootte | 10585 MB |
Caratteristiche Prodotto
Kleur van het product | Licht Grijs |
Breedte | 760 mm |
Diepte | 300 mm |
Hoogte | 760 mm |
Gewicht verpakking | 40500 g |