REMKO SKM 250 Eco handleiding
Handleiding
Je bekijkt pagina 18 van 28

8 Electrical wiring
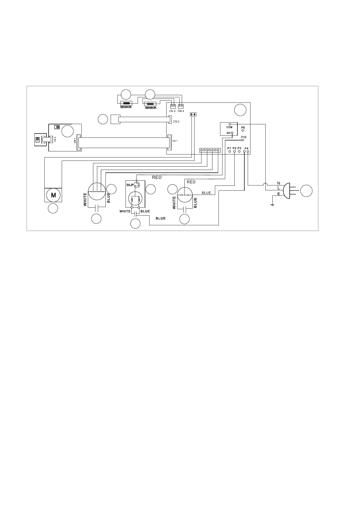
Electrical wiring diagram
A
1
4
6
7
8
BLACK
WHITE
GREEN
M
CN 6
P9
P10
CN 5
B
C
3
2
5
9
10
Fig. 12: Electrical wiring diagram
A: Power supply
B: Control board
C: Diplay board
1: Liquid level switch
2: Temperature sensor room temperature
3: Temperature sensor liquid pipe
4: Condensate pump
5: Fan motor, evaporator
6: Capacitor fan motor, evaporator
7: Compressor
8: Capacitor compressor
9: Fan motor, condenser
10: Capacitor fan motor, condenser
REMKO SKM Eco series
18
Bekijk gratis de handleiding van REMKO SKM 250 Eco, stel vragen en lees de antwoorden op veelvoorkomende problemen, of gebruik onze assistent om sneller informatie in de handleiding te vinden of uitleg te krijgen over specifieke functies.
Productinformatie
| Merk | REMKO |
| Model | SKM 250 Eco |
| Categorie | Niet gecategoriseerd |
| Taal | Nederlands |
| Grootte | 3925 MB |