Rangemaster RMHDT90SS handleiding
Handleiding
Je bekijkt pagina 6 van 12

EN
6
6
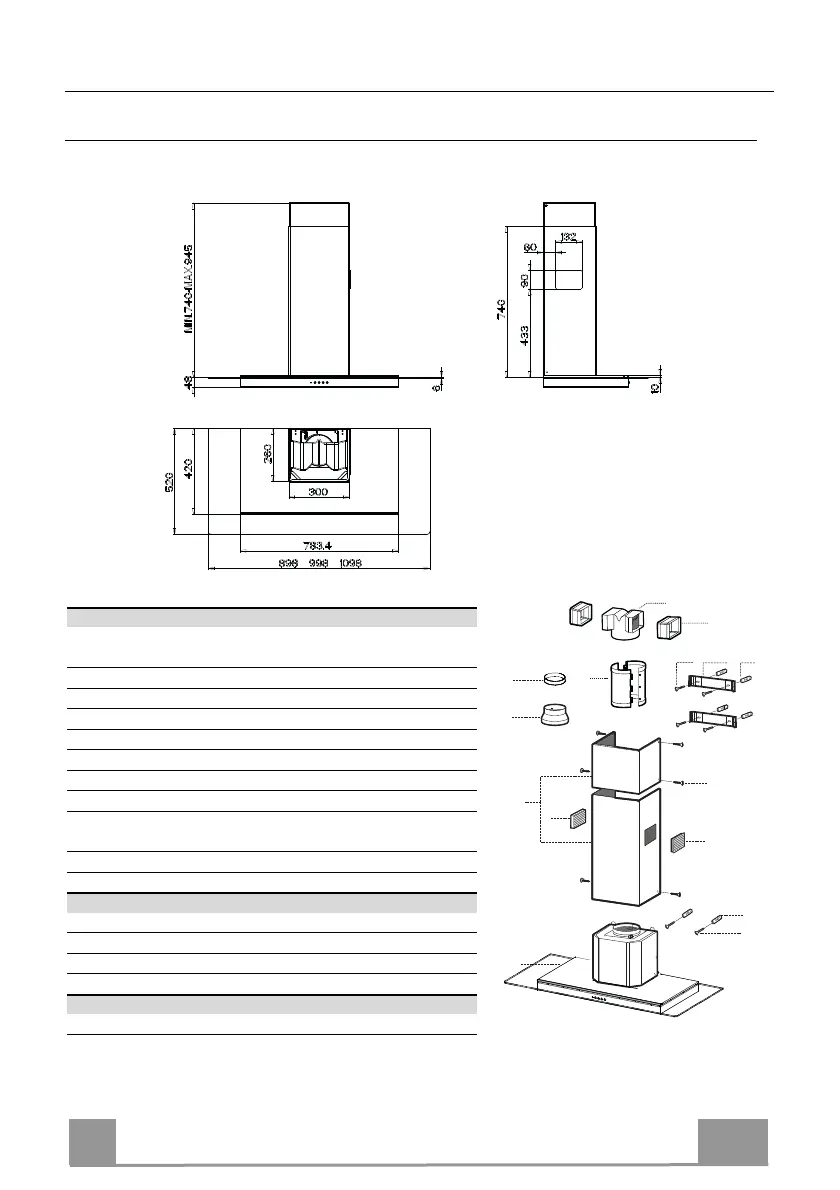
CHARACTERISTICS
Dimensions
Components
Ref. Q.ty Product Components
1 1 Hood Body, complete with: Controls, Light, Blower,
Filters
2 1 Telescopic Chimney comprising:
2.1 1 Upper Section
2.2 1 Lower Section
8a 1 Right Air Outlet Grill
8b 1 Left Air Outlet Grill
9 1 Reducer Flange ø 150-120 mm
10 1 Adapting ring ø 120-125 mm
14 1 Hood Body Air Outlet Extension Piece consisting of two
Half Shells
14.1 2 Air Outlet Connection Extension
15 1 Air Outlet Connection
Ref. Q.ty Installation Components
7.2.1 2 Upper Chimney Section Fixing Brackets
11 6 Wall Plugs
12a 6 Screws 4,2 x 44,4
12c 6 Screws 2,9 x 9,5
Q.ty Documentation
1 Instruction Manual
8a
8b
2.1
2.2
2
12c
1
9
12a
7.2.1 11
14
14.1
15
11
12a
10
Bekijk gratis de handleiding van Rangemaster RMHDT90SS, stel vragen en lees de antwoorden op veelvoorkomende problemen, of gebruik onze assistent om sneller informatie in de handleiding te vinden of uitleg te krijgen over specifieke functies.
Productinformatie
| Merk | Rangemaster |
| Model | RMHDT90SS |
| Categorie | Afzuigkap |
| Taal | Nederlands |
| Grootte | 888 MB |
