Rangemaster Professional+ 100 Ceramic handleiding
Handleiding
Je bekijkt pagina 36 van 44

32
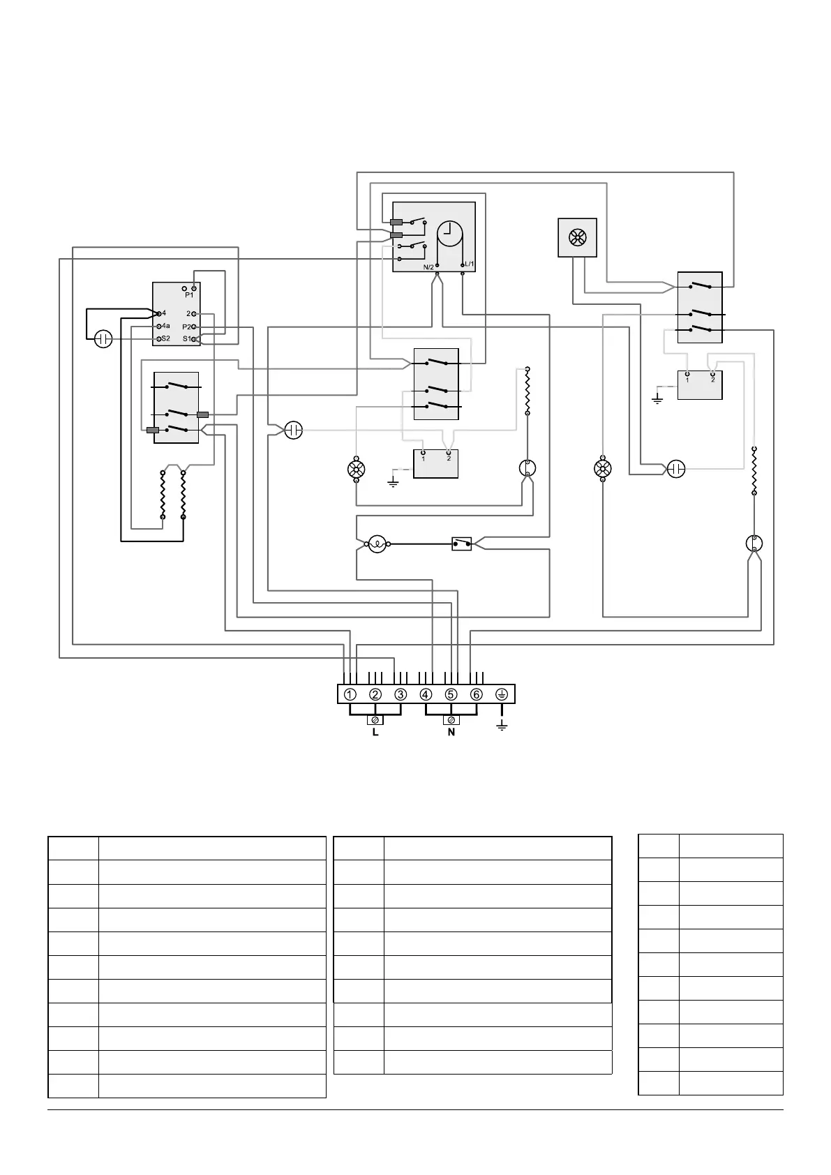
Fan oven
Key
The connections shown in the circuit diagram are for single-phase. The ratings are for 230 V 50 Hz.
ArtNo.082-0013 - 90 ceramic (oven) circuit diagram
P095199
1
2
1
P1
P1
P2
E
P095199
1
2
1
P1
P1
P2
P095199
1
2
1
P1
P1
P2
b
b
b
br
br
r
v
r
r
br
br
v
r
y
b
br
b
r
or
y
y
y
y
y
v
y
or
g/y
b
br
br
b
bk
r
v
br
or
v
y
bk
g/y
y
y
b
y
b
b
or
b
r
v
r
bk
r
r
bk
b
b
b
y
v
v
br
r
bk
b
br
r
b
b
br
br
br
br
b
b
b
b
b
br
br
bb
y
b
b
bk
b
y
bk
r
br
A1
A2
A3
J1
J2
B4
B1
B2
D
H
B3
G1
G2
C4
J3
H
C3
C1
C2
F
Code Description
A1
Grill energy regulator
A2
Grill front switch
A3
Grill elements
B1
Left-hand zoned oven thermostat
B2
Left-hand oven thermostat front switch
B3
Left-hand oven element
B4
Left-hand oven fan
C1
Right-hand oven thermostat
C2
Right-hand oven thermostat front switch
C3
Right-hand oven element
Code Description
C4
Right-hand oven fan
D
Clock
F
Cooling fan
G1
Oven light switch
G2
Oven light
H
Thermal cut-out
J1
Grill neon
J2
Left-hand oven neon
J3
Right-hand oven
Code Colour
b
Blue
br
Brown
bk
Black
or
Orange
r
Red
v
Violet
w
White
y
Yellow
g/y
Green/yellow
bk/w
Black/white
Bekijk gratis de handleiding van Rangemaster Professional+ 100 Ceramic, stel vragen en lees de antwoorden op veelvoorkomende problemen, of gebruik onze assistent om sneller informatie in de handleiding te vinden of uitleg te krijgen over specifieke functies.
Productinformatie
| Merk | Rangemaster |
| Model | Professional+ 100 Ceramic |
| Categorie | Fornuis |
| Taal | Nederlands |
| Grootte | 8420 MB |
Caratteristiche Prodotto
| Soort bediening | Draaiknop |
| Vermogen grill | 2300 W |
| Kleur van het product | Roestvrijstaal |
| Ingebouwd display | Ja |
| Breedte | 994 mm |






