Rangemaster Classic 100 Dual Fuel handleiding
Handleiding
Je bekijkt pagina 34 van 40

30
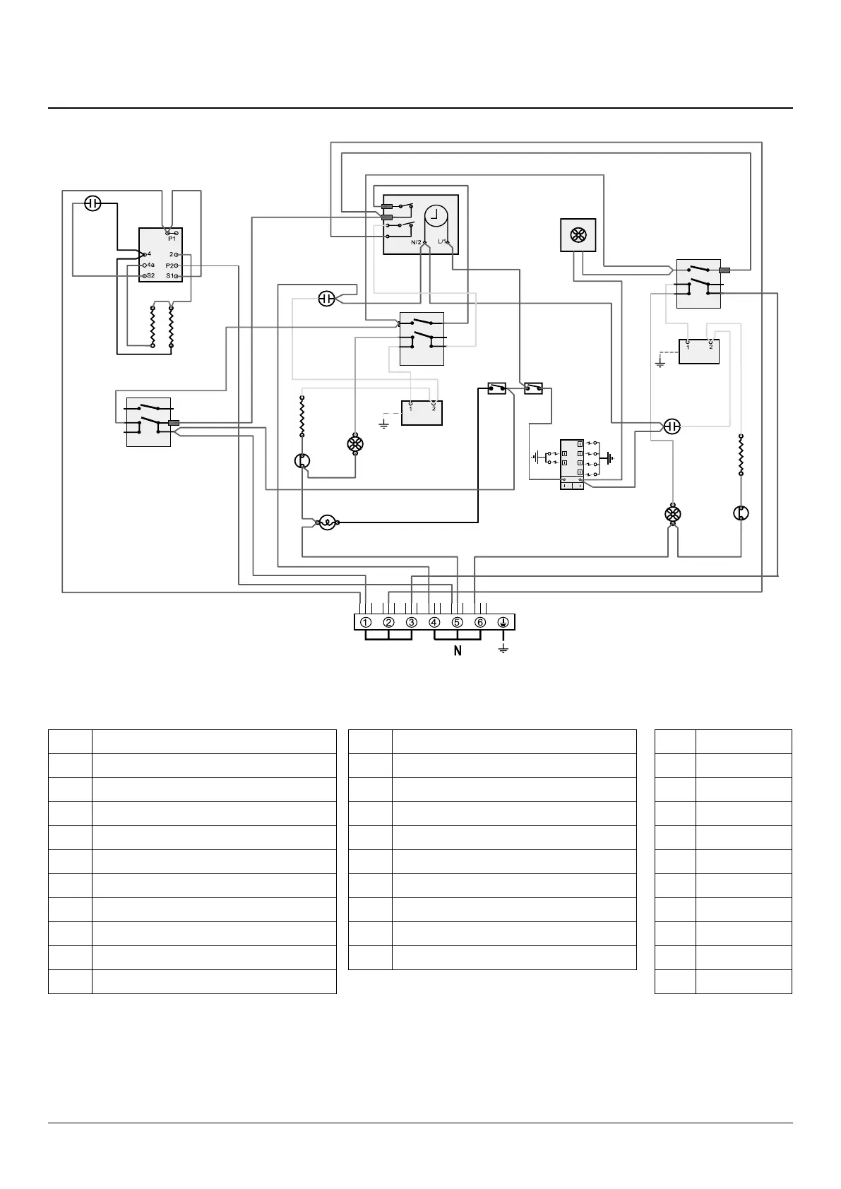
9. Circuit Diagram
P095199
2
P2
P1
1
P095199
2
P2
P1
1
a
b
e
f
c
d
1
2
b
v
br bbbb
r
b
b
r
b
b
br
v
bk
bk
v
v
br
br
b
y
y
y
y
br
b
br
b
br
b
bk
b
g/y
v
y
y
or
or
g/y
r
r
bk
br
br
v
bk
v
br
b
r
b
b
v
b
b
r
r
v
y
y
b
r
b
r
b
bbr br
br
b
b
y
br br b
br
v
v
y
E
X02
X17
X01
L
X27
X31
X05
X26
X26
X26
X27
X32
X14
X12
X15
X24
X04X03
X29
X30
P095199
2
P2
P1
1
X07
y
X09
b
or
b
X16
X16
or
Key
The connections shown in the circuit diagram are for single-phase. The ratings are for 230 V 50 Hz.
Code Colour
b
Blue
br
Brown
bk
Black
or
Orange
r
Red
v
Violet
w
White
y
Yellow
g/y
Green/yellow
gr
Grey
Code Description
X01
Grill front switch
X02
Grill energy regulator
X03
Left-hand grill element
X04
Right-hand grill element
X05
Left Hand Oven Thermostat
X07
Left Hand Oven Front Switch
X09
Left Hand Oven Fan Element
X12
Right Hand Oven Thermostat
X14
Right Hand Oven Front Switch
X15
Right Hand Oven Fan Element
Code Description
X16
Oven Fan
X17
Clock / Timer
X24
Cooling fan
X26
Neon
X27
Themal cut-out
X29
Ignition switch
X30
Spark generator
X31
Oven light
X32
Oven light switch
Bekijk gratis de handleiding van Rangemaster Classic 100 Dual Fuel, stel vragen en lees de antwoorden op veelvoorkomende problemen, of gebruik onze assistent om sneller informatie in de handleiding te vinden of uitleg te krijgen over specifieke functies.
Productinformatie
Merk | Rangemaster |
Model | Classic 100 Dual Fuel |
Categorie | Fornuis |
Taal | Nederlands |
Grootte | 7914 MB |