Rane ECS Ware handleiding
Handleiding
Je bekijkt pagina 18 van 32

RW Manual-18
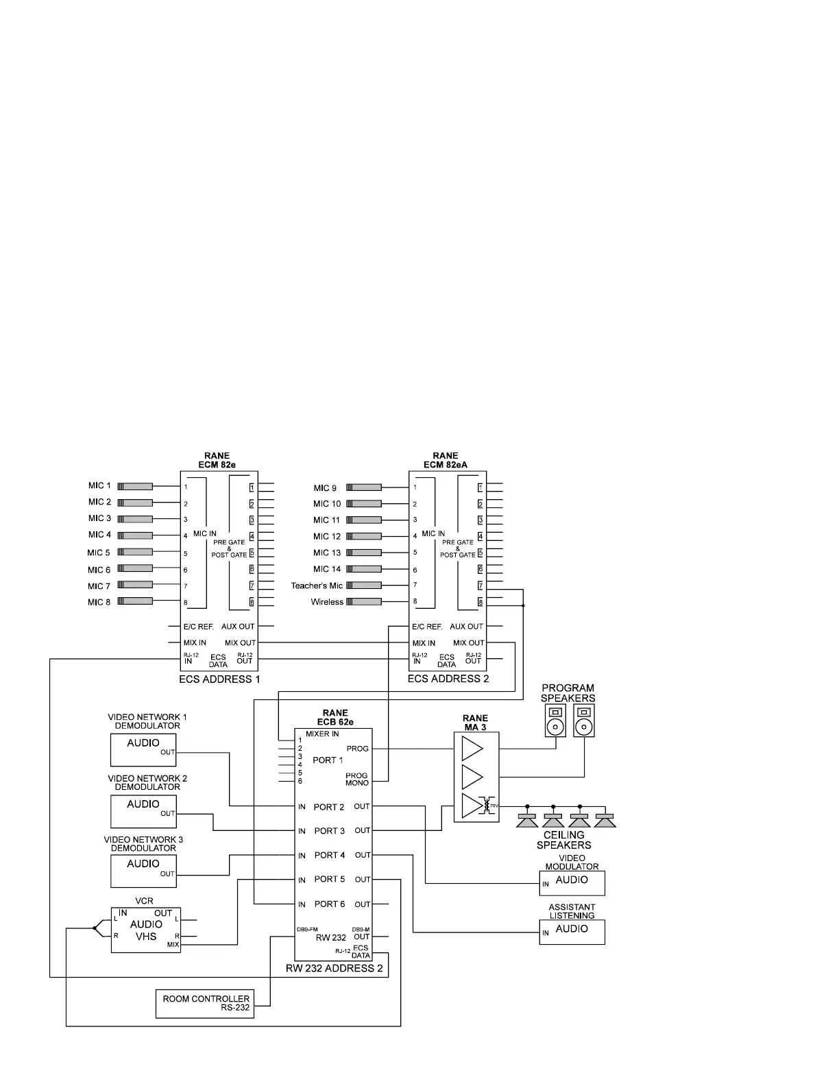
System 3: Distance Learning
This illustrates a distance learning application using
broadband video that requires reinforcement of the teachers’
Mics. There are 2 teacher Mics and 10 student Mics, a
connection to 3 other classrooms using a video demodulator,
a VCR and a video modulator. The mics are evenly spread
between the ECM 82es. To reinforce the teachers, the Post
Gate Outputs from these mics on the ECM 82eA #1 are tied
together and connected to the Input of Port 6 on the ECB 62e.
Port 6 is then routed to the Output of Port 3. Since the Output
impedance of the Post and Pre Gates are 300 ohms, tying
these Outputs together creates a passive mixer. Do not use P3
Prog Contribute when local Mics are routed to Port 3.
Rane Equipment
1 ECB 62e Base
1 ECM 82eA Mixer with Echo Canceller
1 ECM 82e Mixer
1 MA 3 Multichannel Amplifier with TF 407 transoformers
RaneWare Setup
The file for this application is called AP3V2.ECS, located
on the RaneWare disk. This file has 8 preset operational
Memories.
Memory 1 - Room Controller operational mode. In this mode
all Port Outputs have their Input select checkboxes cleared
and all Mic Inputs are Active and set to Automatic opera-
tion. This is performed by selecting the Port Memory
settings from Preset Memory 1 at start-up, allowing the
Room Controller to know the start-up condition of ECS.
Memory 2 - Selecting this Preset Memory connects the
Conference Room (Port 1) to Video Network 1 (Port 2).
Memory 3 - Selecting this Preset Memory connects the
Conference Room (Port 1) to Video Network 2 (Port 3).
Memory 4 - Selecting this Preset Memory connects the
Conference Room (Port 1) to Video Network 3 (Port 4).
Memory 5 - Selecting this Preset Memory bridges the Confer-
ence Room (Port 1), Video Network 1 (Port 2), Video
Network 2 (Port 3) and Video Network 3 (Port 4) together.
Memory 16 - Preconditions the Port Inputs and the Mic Inputs
for alignment.
Bekijk gratis de handleiding van Rane ECS Ware, stel vragen en lees de antwoorden op veelvoorkomende problemen, of gebruik onze assistent om sneller informatie in de handleiding te vinden of uitleg te krijgen over specifieke functies.
Productinformatie
Merk | Rane |
Model | ECS Ware |
Categorie | Niet gecategoriseerd |
Taal | Nederlands |
Grootte | 4629 MB |