Randell FX-2UCB-290 handleiding
Handleiding
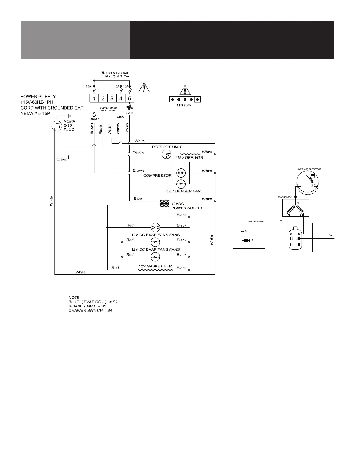
Bekijk gratis de handleiding van Randell FX-2UCB-290, stel vragen en lees de antwoorden op veelvoorkomende problemen, of gebruik onze assistent om sneller informatie in de handleiding te vinden of uitleg te krijgen over specifieke functies.
Productinformatie
| Merk | Randell |
| Model | FX-2UCB-290 |
| Categorie | Niet gecategoriseerd |
| Taal | Nederlands |
| Grootte | 1959 MB |








