Randell FX-1-290 handleiding

17 pagina's
PDF beschikbaar

Handleiding

Je bekijkt pagina 16 van 17
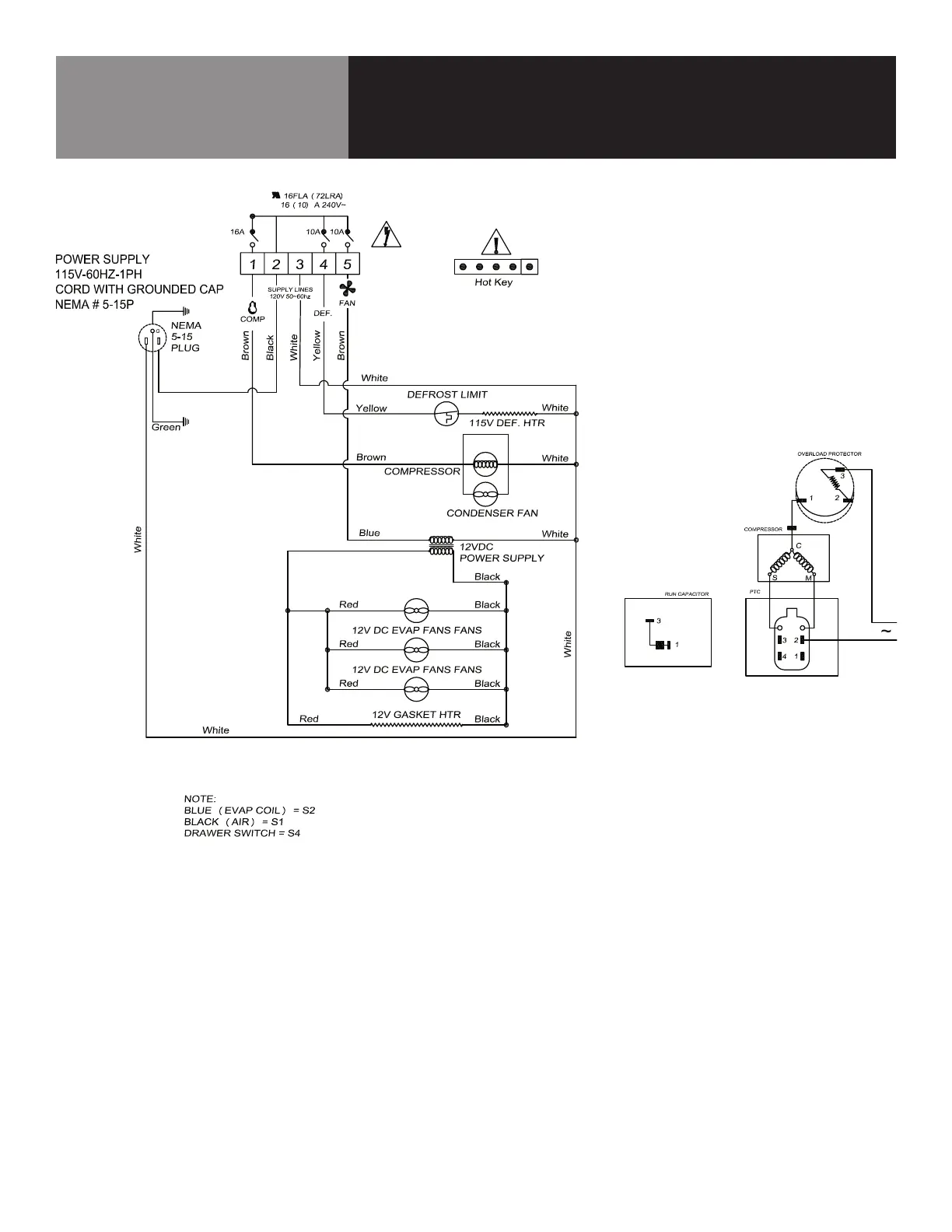
16 OM-FX SERIES
Electrical Schematic

Bekijk gratis de handleiding van Randell FX-1-290, stel vragen en lees de antwoorden op veelvoorkomende problemen, of gebruik onze assistent om sneller informatie in de handleiding te vinden of uitleg te krijgen over specifieke functies.

Productinformatie

MerkRandell
ModelFX-1-290
CategorieNiet gecategoriseerd
TaalNederlands
Grootte1959 MB