Handleiding
Je bekijkt pagina 60 van 68

PR188DVK
60
INSTALLATION
• Remove the exterior and interior packing, wipe the outside thoroughly with a
soft dry cloth and the inside with a wet, lukewarm cloth. Dry the appliance o
well.
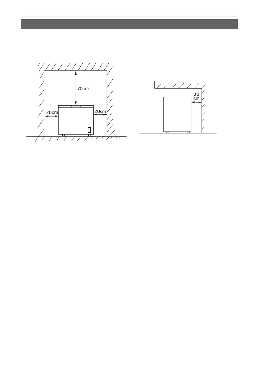
• Let air circulate freely around the cabinet.
• Make sure there is sucient space to open the door.
• This cooling unit is not intended for use as a built-in appliance.
• Select a place with a strong, level oor.
• Avoid direct sunlight and heat. Direct sunlight may aect the acrylic coating.
Heat sources nearby will cause higher electricity consumption.
• Avoid very moist places. Too much moisture in the air will cause frost to form very
quickly on the evaporator, and your freezer.
• Before connecting your freezer to the power supply, check that the voltage
stated on the rating label of your appliance corresponds to the voltage in your
home. A dierent voltage could damage the appliance.
• After installation, leave the freezer for 24 hours before turning it on. This way the
refrigerant can settle.
• Allow the appliance to run empty for 12 hours so the compartment can cool to
the appropriate temperature.
• The climate class indicates the minimum and maximum ambient temperature for
the proper operation of an appliance. You can nd the climate class on the type
plate on the back of the appliance.
- SN: Subnormal: ambient temperature between 10°C and 32°C
- N: Normal: ambient temperature between 16°C and 32°C
- ST: Subtropical: ambient temperature between 16°C and 38°C
- T: Tropical: ambient temperature between 16°C and 43°C
Bekijk gratis de handleiding van Primo PR188DVK, stel vragen en lees de antwoorden op veelvoorkomende problemen, of gebruik onze assistent om sneller informatie in de handleiding te vinden of uitleg te krijgen over specifieke functies.
Productinformatie
| Merk | Primo |
| Model | PR188DVK |
| Categorie | Vriezer |
| Taal | Nederlands |
| Grootte | 4642 MB |




