Handleiding
Je bekijkt pagina 28 van 40

INSTALLATION INSTRUCTIONS - 90CM
Step 1: Prepare installation
Do not lift the appliance by the door handle.
Remove the fixing screws from the
polythene bag on the top of the appliance,
but leave the appliance in the base tray
packaging until you are ready to install it.
Whilst every care is taken to eliminate
burrs and raw edges from this appliance,
please take care when handling - we
recommend the use of protective gloves
during installation.
Please note that the weight of this
appliance is approximately 48kg
(unpacked). Take care when lifting it
into the housing unit - always use an
appropriate method of lifting.
Note: When removing the appliance from
the base tray packaging care should
be taken to ensure the appliance is not
damaged.
Siting the appliance
If this appliance is to be installed near to
a corner where the adjacent cabinets run
at right angles forward of the appliance,
there must be a gap of at least 90mm
between the appliance and the cabinets,
to prevent overheating of the cabinets.
When installed in a typical 600mm
deep built in housing unit, the false back
should be removed from the housing
unit, to provide the necessary depth for
installation.
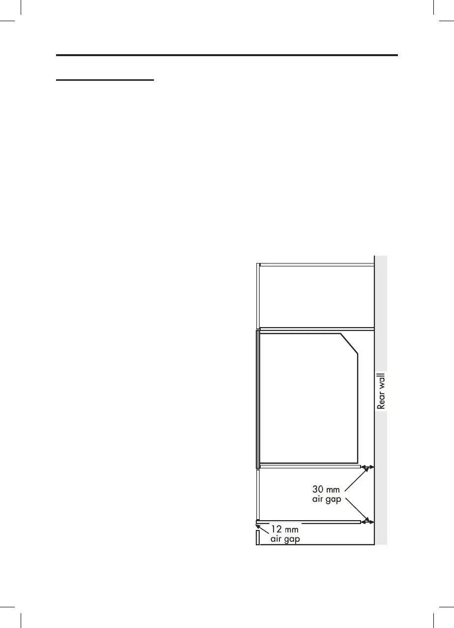
When the false back is removed, it is
normally the case that the support shelf
for the appliance leaves a gap between
the back edge of the support shelf and the
rear wall of approximately 80mm.
If no gap occurs between the back edge
of the shelf and the wall behind the unit,
you must create a gap of at least 30mm
by shortening the shelf and any other shelf
below the appliance.
Cut 12mm from the top of any plinth that
may be fitted (see diagram).
Important: Do not modify the outer
panels of this appliance in any way.
Step 1: Prepare installation
Do not lift the appliance by the
door handle.
Remove the fixing screws from the
polythene bag on the top of the
appliance, but leave the appliance in
the base tray packaging until you are
ready to install it.
Whilst every care is taken to eliminate
burrs and raw edges from this appliance,
please take care when handling - we
recommend the use of protective
gloves during installation.
Please note that the weight of this
appliance is approximately 48kg
(unpacked). Take care when lifting it
into the housing unit - always use an
appropriate method of lifting.
Note: When removing the appliance
from the base tray packaging care
should be taken to ensure the appliance
is not damaged.
Siting the appliance
If this appliance is to be installed near
to a corner where the adjacent
cabinets run at right angles forward of
the appliance, there must be a gap of
at least 90mm between the appliance
and the cabinets, to prevent
overheating of the cabinets.
When installed in a typical 600mm
deep built in housing unit, the false
back should be removed from the
housing unit, to provide the necessary
depth for installation.
When the false back is removed, it is
normally the case that the support shelf
for the appliance leaves a gap
between the back edge of the support
shelf and the rear wall of
approximately 80mm.
If no gap occurs between the back
edge of the shelf and the wall behind
the unit, you must create a gap of at
least 30mm by shortening the shelf
and any other shelf below the appliance.
Cut 12mm from the top of any plinth
that may be fitted (see diagram).
Important: Do not modify the outer
panels of this appliance in any way.
25
INSTALLATION INSTRUCTIONS
Bekijk gratis de handleiding van Prima LPR8021, stel vragen en lees de antwoorden op veelvoorkomende problemen, of gebruik onze assistent om sneller informatie in de handleiding te vinden of uitleg te krijgen over specifieke functies.
Productinformatie
| Merk | Prima |
| Model | LPR8021 |
| Categorie | Oven |
| Taal | Nederlands |
| Grootte | 2693 MB |






