Handleiding
Je bekijkt pagina 58 van 80

Pagina 19
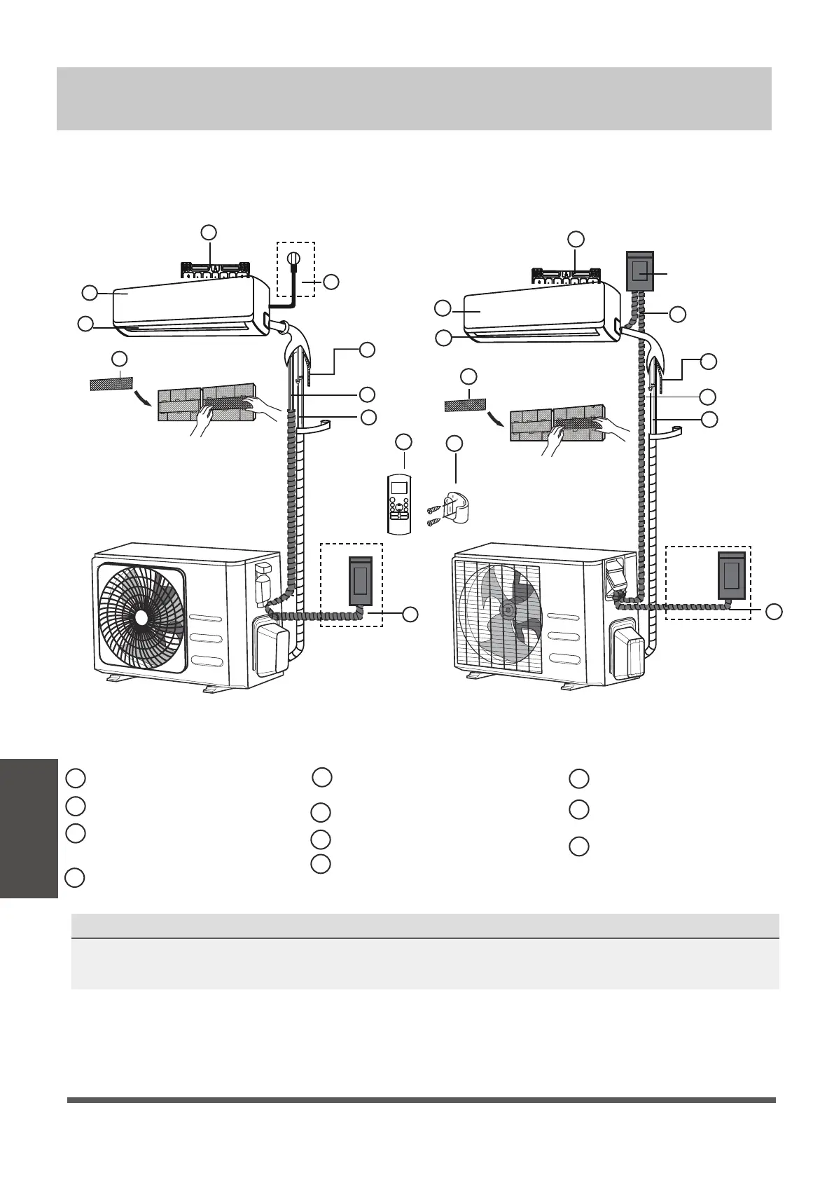
Partes de la unidad
NOTA SOBRE LAS ILUSTRACIONES
Las ilustraciones de este manual tienen fines explicativos. La forma real de su unidad interior
puede ser ligeramente diferente. Prevalecerá la forma real.
NOTA: La instalación debe realizarse de acuerdo con los requisitos de las normas locales y
nacionales. La instalación puede ser ligeramente diferente en diferentes áreas.
Placa de montaje en pared
Cable de señal
Tubería de refrigerante
Control remoto
Tubería de drenaje
Panel frontal
Cable de alimentación
(algunas unidades)
Rejilla
Filtro funcional (en la parte
posterior de Filtro principal -
Algunas unidades)
Soporte Mando a Distancia
(Algunas Unidades)
Cable de alimentación de la
unidad exterior (algunas
unidades)
1
2
3
4
5
6
7
8
9
10
11
(1)(2)
1
2
3
4
6
7
8
9
10
11
interruptor
electromecanico
3
1
2
4
5
6
7
8
11
5
Partes de la unidad
Bekijk gratis de handleiding van Premium PIAWMZ128790A, stel vragen en lees de antwoorden op veelvoorkomende problemen, of gebruik onze assistent om sneller informatie in de handleiding te vinden of uitleg te krijgen over specifieke functies.
Productinformatie
| Merk | Premium |
| Model | PIAWMZ128790A |
| Categorie | Airco |
| Taal | Nederlands |
| Grootte | 11385 MB |

