Premium Levella PIAWMZ188800B handleiding
Handleiding
Je bekijkt pagina 61 van 86

'LDJUDPDGH
LQVWDODFLyQ
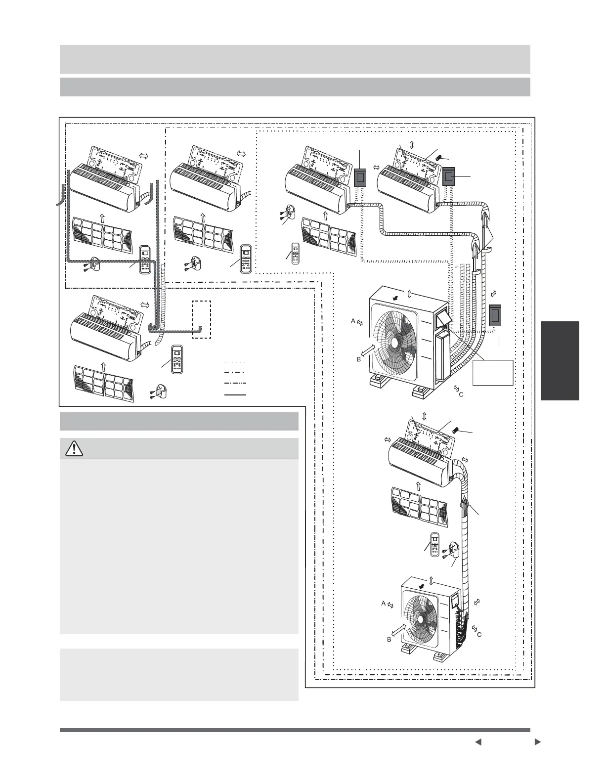
'LDJUDPDGHLQVWDODFLyQ
'LDJUDPDGHLQVWDODFLyQ
3UHFDXFLRQHVGHVHJXULGDG
35(&$8&,Ï1
3DUDHYLWDUGDxRVHQODSDUHGXVHXQSHUQR
SULVLRQHURSDUDXELFDUORVSHUQRV
6HUHTXLHUHXQWUDPRPtQLPRGHWXEHUtDGH
PHWURVSDUDPLQLPL]DUODYLEUDFLyQ\HOUXLGR
H[FHVLYR
'RVGHODVYtDVGHFLUFXODFLyQGHDLUH$%\
&GHEHQHVWDUOLEUHVGHREVWUXFFLRQHVHQWRGR
PRPHQWR
(VWDLOXVWUDFLyQHVVRORSDUD¿QHVGH
GHPRVWUDFLyQ
/DIRUPDUHDOGHVXDLUHDFRQGLFLRQDGRSXHGH
VHUOLJHUDPHQWHGLIHUHQWH
/DVOtQHDVGHFREUHGHEHQHVWDUDLVODGDVGH
IRUPDLQGHSHQGLHQWH
127$/DLQVWDODFLyQGHEHVHUOOHYDGDDFDERGH
DFXHUGRFRQHOUHTXHULPLHQWRGHORVHVWiQGDUHV
ORFDOHV\QDFLRQDOHV/DLQVWDODFLyQSXHGHVHU
OLJHUDPHQWHGLIHUHQWHHQGLIHUHQWHViUHDV
(2)
1
2
3
5
4
1
(1)
5 4 3
2
0iVGHFP
0iVGHFP
0iVGH
FP
0iVGH
FP
0iVGHFP
0iVGHFP
6DOLGDGH
DLUH
6DOLGDGH
DLUH
&DEOHGHHQHUJtD
GHODXQLGDG
H[WHULRU
7RUQLOORGHPRQWDMH
67î&+
/DFDQWLGDGPi[LPD
GHFDEOHVGHFRQH[LyQ
HV(VWDVHFFLyQ
HV~QLFDPHQWHGH
UHIHUHQFLD
0iVGH
FP
0iVGHFP
3ODFDGHLQVWDODFLyQ
$QFODGHFOLS
7XEHUtDGH
UHIULJHUDQWH
&RQWURODGRU
UHPRWR
6RSRUWHGHO
PDQGRD
GLVWDQFLD
0iVGH
FP
0iVGH
FP
0iVGH
FP
0iVGH
FP
0iVGH
FP
0iVGHFP
0iVGHFP
)LOWURGHDLUH
)LOWURGH
DLUH
)LOWURGH
DLUH
&RQWURODGRU
UHPRWR
&RQWURODGRU
UHPRWR
&RQWURODGRU
UHPRWR
8QRGRV
8QRWUHV
8QRFXDWUR
8QRFLQFR
&RQWURODGRU
UHPRWR
6RSRUWHGHO
PDQGRD
GLVWDQFLD
,QWHUUXSWRUGH
FRUWHGHDLUH
7RUQLOORGHPRQWDMH
67î&+
0iVGHFP
3ODFDGHLQVWDODFLyQ
$QFODGHFOLS
,QWHUUXSWRUGH
FRUWHGHDLUH
7XERGH
GUHQDMH
)LOWURGHDLUH
)LOWURGHDLUH
0iVGHFP
3iJLQD
Bekijk gratis de handleiding van Premium Levella PIAWMZ188800B, stel vragen en lees de antwoorden op veelvoorkomende problemen, of gebruik onze assistent om sneller informatie in de handleiding te vinden of uitleg te krijgen over specifieke functies.
Productinformatie
| Merk | Premium Levella |
| Model | PIAWMZ188800B |
| Categorie | Airco |
| Taal | Nederlands |
| Grootte | 13824 MB |







