Handleiding
Je bekijkt pagina 6 van 100

6
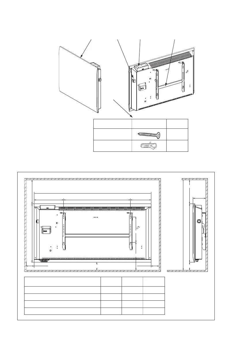
PRODUCT OVERVIEW
1.Body
2.Switch
3.Control panel
4.Wall bracket
5.Wall-mounting kits
Description
Screw 4
4Plastic plug
Drawing QTY
123
4
INSTALLATION
185mm 130mmA
B
Min.50mm
Min.50mm
Min.50mm
Min.50mm
Min.568mm
81mm
Min.175mm
Min.150mm
160mm
368mm Min.150mm
368mm
Model no. Watt A B
POPANW400 150mm 465mm
210mm
525mm
330mm
645mm
420mm
400W
600W
800W
1000W 735mm
POPANW600
POPANW800/POPANW800B
POPANW1000/POPANW1000B
5
Bekijk gratis de handleiding van Point POPANW600, stel vragen en lees de antwoorden op veelvoorkomende problemen, of gebruik onze assistent om sneller informatie in de handleiding te vinden of uitleg te krijgen over specifieke functies.
Productinformatie
Merk | Point |
Model | POPANW600 |
Categorie | Heater |
Taal | Nederlands |
Grootte | 6891 MB |