Handleiding
Je bekijkt pagina 21 van 80

21
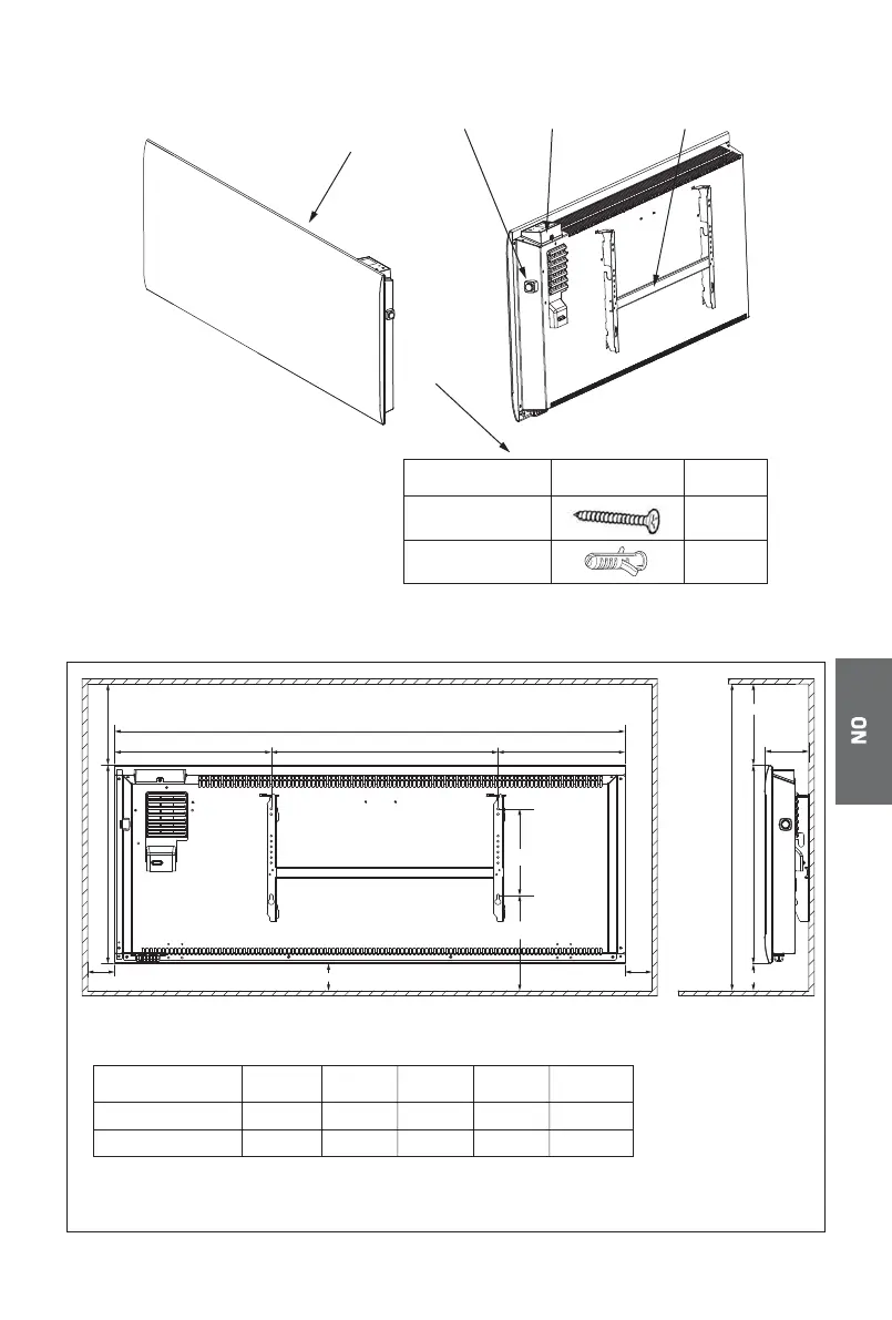
1.Hoveddel
2.Bryter
3.Kontrollpanel
4.Veggbrakett
5.Sett for veggmontering
Beskrivelse
Skrue 4
4Plastplugg
Tegning Antall
PRODUKTOVERSIKT
1
23
4
INSTALLATION
Min.50mm
Min.568mm
368mm
Modellnr. Watt C D
POPANW1500 290mm 235mm
360mm
305mm
AB
420mm 945mm
490mm
1155mm
1500W
2000WPOPANW2000
5
ADC
B
368mm
Min.150mm
Min.50mm Min.50mm
Min.50mm
Min.175mm
160mm
81mm
Min.150mm
Bekijk gratis de handleiding van Point POPANW1500, stel vragen en lees de antwoorden op veelvoorkomende problemen, of gebruik onze assistent om sneller informatie in de handleiding te vinden of uitleg te krijgen over specifieke functies.
Productinformatie
Merk | Point |
Model | POPANW1500 |
Categorie | Heater |
Taal | Nederlands |
Grootte | 4842 MB |